Großzügige und funktionale Büroflächen im Otto-Hirsch-Center
70329 Stuttgart, Hedelfingen, Bürohaus zur Miete
Kontaktdaten
-
NameHerr Sven Gruber
-
FirmaIMMORAUM GmbH
-
AnschriftUhlandstraße 14
70182 Stuttgart -
E-Mail
-
Telefon
-
Telefon
-
Mobil
Objektdaten
-
Objekt-IDIR6283/G1/E3/Eh1
-
ObjekttypenBüro/Praxis, Bürohaus
-
Adresse70329 Stuttgart, Hedelfingen
-
Etage3
-
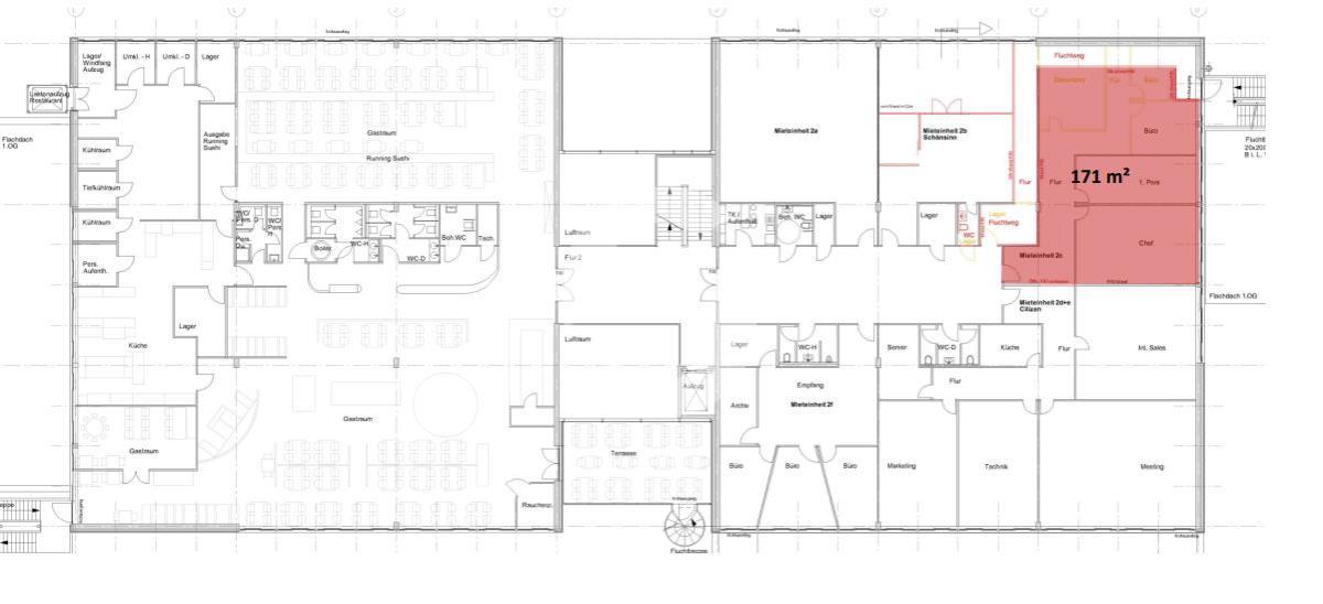
Bürofläche ca.947 m²
-
Büroteilfläche ca.947 m²
-
Wesentlicher EnergieträgerGas
-
Baujahr2007
-
Zustandgepflegt
-
Stellplätze gesamt6
-
Mieterprovision (gewerblich)provisionsfrei
-
Miete pro m²11,00 EUR
-
Nebenkosten4,50 EUR
Ausstattung / Merkmale
- ✓ Teppichboden
Energieausweis
-
EnergieausweistypBedarfsausweis
-
Baujahr2007
-
Wesentlicher EnergieträgerGas
Objektbeschreibung
Beschreibung
Im repräsentativen Otto-Hirsch-Center in bester Lage von Hedelfingen stehen derzeit attraktive Vakanzen zur Verfügung. Aufgrund großzügiger Fensterelemente wird den Flächen viel Tageslicht gespendet.
Die Einheiten sind barrierefrei zu erreichen.
Sonstiges
Noch nicht das Richtige? Wir führen weitere Objekte im Großraum Stuttgart. Sprechen Sie mit unseren Beratern. Gemeinsam finden wir Ihr Wunschobjekt! Wir freuen uns auf Ihre Kontaktaufnahme!
Nach den §§ 16, 16 a EnEV ist der Eigentümer, Verkäufer, Vermieter, Verpächter und Leasinggeber bei der Vermarktung von Immobilien verpflichtet, den Energieausweis der Immobilie gemäß der gesetzlichen Vorgabe bei Besichtigungen auszuhändigen bzw. auszuhängen und bestimmte energetische Kennwerte aus dem Energieausweis in die Immobilieninserate und Exposés aufzunehmen. Dieser Nachweis wurde von uns bereits bei den Eigentümern angefordert und kann von Ihnen beim Besichtigungstermin eingesehen werden.
Lage
Hedelfingen ist ein südöstlicher Stadtbezirk der Landeshauptstadt Stuttgart am linken Ufer des Neckars. Des Weiteren tangiert die B10 Hedelfingen, eine eigene Ausfahrt ist vorhanden. Über die Bundesstraße B27 lässt sich der Flughafen als auch die Messe Stuttgart problemlos innerhalb von nur circa 25 Minuten erreichen. Sämtliche Geschäfte für den täglichen Bedarf befinden sich in fußläufiger Erreichbarkeit.
Flughafen 20 km | Fernbahnhof 10 km | Autobahn 20 km | U/S-Bahn 1 km | Zentrum 10 km | Bus 1 km | Einkaufsmöglichkeiten 4 km | Gaststätten 4 km
70329 Stuttgart, Hedelfingen, Deutschland (auf Google Maps ansehen)


