Attraktive Neubau – Bäckerei- und Verkaufsfläche
70435 Stuttgart, Zuffenhausen, Einzelhandel zur Miete
Kontaktdaten
-
NameHerr Sven Gruber
-
FirmaIMMORAUM GmbH
-
AnschriftUhlandstraße 14
70182 Stuttgart -
E-Mail
-
Telefon
-
Telefon
-
Mobil
Objektdaten
-
Objekt-IDIRx2683
-
ObjekttypEinzelhandel
-
Adresse70435 Stuttgart, Zuffenhausen
-
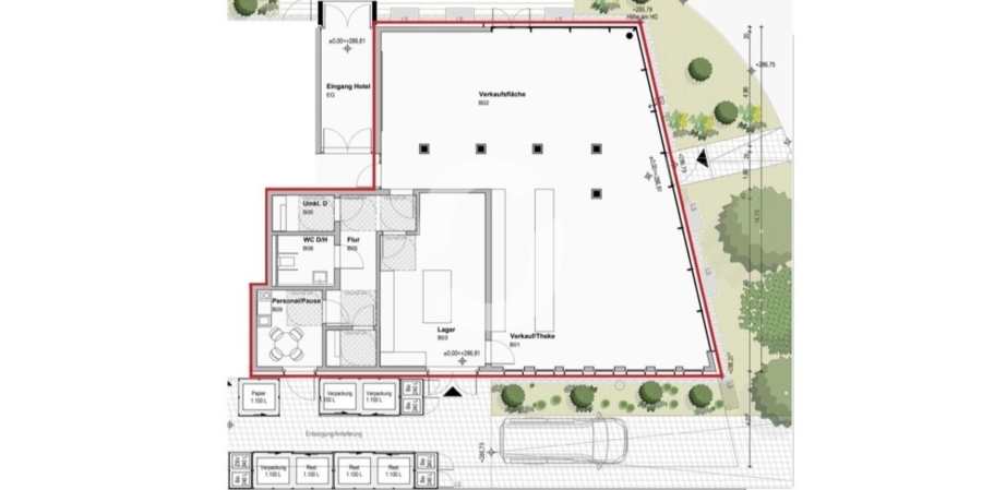
Gastrofläche ca.229,36 m²
-
BaujahrQ4 2027
-
ZustandErstbezug
-
Preisauf Anfrage
Objektbeschreibung
Beschreibung
In einem architektonisch anspruchsvollen, projektierten Neubau entsteht im Erdgeschoss eine attraktive Gastronomiefläche mit hervorragender Sichtbarkeit und repräsentativer Außenwirkung. Das moderne Gebäude überzeugt durch seine klare, elegante Fassadengestaltung mit hochwertiger Natursteinoptik im Sockelbereich und großzügigen Fensterflächen, die dem Erdgeschoss eine offene und einladende Atmosphäre verleihen. Die geplante Gastronomieeinheit profitiert von bodentiefen Verglasungen, die eine optimale Präsenz im Straßenraum ermöglichen und ideale Voraussetzungen für ein modernes Gastronomiekonzept schaffen. Eine vorgelagerte Außenfläche bietet Potenzial für eine attraktive Außengastronomie und erweitert die Nutzungsmöglichkeiten erheblich. Der Neubau verbindet zeitgemäße Architektur mit urbaner Eleganz und schafft einen hochwertigen Rahmen für Restaurant-, Café- oder Bistrokonzepte. Durch die prominente Lage im Erdgeschoss und die repräsentative Gestaltung des Gebäudes bietet die Fläche beste Voraussetzungen für eine nachhaltige Positionierung im Markt. Etwas kanpper bitte
Sonstiges
Noch nicht das Richtige? Wir führen weitere Objekte im Großraum Stuttgart. Sprechen Sie mit unseren Beratern. Gemeinsam finden wir Ihr Wunschobjekt! Wir freuen uns auf Ihre Kontaktaufnahme!
Nach den §§ 16, 16 a EnEV ist der Eigentümer, Verkäufer, Vermieter, Verpächter und Leasinggeber bei der Vermarktung von Immobilien verpflichtet, den Energieausweis der Immobilie gemäß der gesetzlichen Vorgabe bei Besichtigungen auszuhändigen bzw. auszuhängen und bestimmte energetische Kennwerte aus dem Energieausweis in die Immobilieninserate und Exposés aufzunehmen. Dieser Nachweis wurde von uns bereits bei den Eigentümern angefordert und kann von Ihnen beim Besichtigungstermin eingesehen werden.
Lage
Die Lage der Gastronomiefläche vereint eine gute lokale Infrastruktur mit einer starken regionalen Einbindung. ÖPNV-Haltestellen sind fußläufig erreichbar, und die Nähe zur S-Bahn "Neuwirtshaus (Porscheplatz)" ermöglicht schnelle Verbindungen sowohl ins Stuttgarter Zentrum als auch in die umliegenden Stadtteile. Gleichzeitig profitiert der Standort von einer Nähe zu Bundesautobahnen und dem Flughafen, wodurch überregionale Mobilität sichergestellt ist. Im direkten Umfeld sorgen Einzelhandel, Gastronomie und Dienstleistungsangebote für kurze Wege im Alltag und eine funktionale, nutzerfreundliche Umgebung. Insgesamt bietet die Lage eine attraktive Mischung aus urbaner Erreichbarkeit und guter regionaler Verkehrsanbindung.
Flughafen 15 km | Fernbahnhof 8 km | Autobahn 4 km | U/S-Bahn 300 m | Zentrum 10 km | Bus 300 m | Einkaufsmöglichkeiten 500 m | Gaststätten 300 m
Die dargestellte Position der Immobilie ist nur eine ungefähre Angabe.








