Moderne und top ausgestattete Büroflächen im STEP!
70563 Stuttgart, Vaihingen, Bürohaus zur Miete
Kontaktdaten
-
NameHerr Raphael Jung
-
FirmaIMMORAUM GmbH
-
AnschriftUhlandstraße 14
70182 Stuttgart -
E-Mail
-
Telefon
-
Telefon
-
Mobil
Objektdaten
-
Objekt-IDIR3694
-
ObjekttypenBüro/Praxis, Bürohaus
-
Adresse70563 Stuttgart, Vaihingen
-
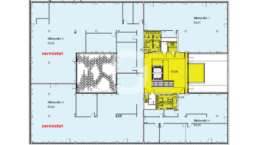
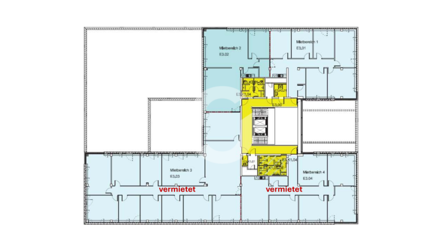
Bürofläche ca.1.628,42 m²
-
Büroteilfläche ca.175,85 m²
-
KücheTeeküche
-
Baujahr2015
-
Zustandgepflegt
-
AusstattungStandard
-
Mieterprovision (gewerblich)provisionsfrei
-
Miete pro m²16,50 EUR
-
Nebenkosten4,85 EUR
Ausstattung / Merkmale
- ✓ DV-Verkabelung
- ✓ Laminatboden
- ✓ Personenaufzug
- ✓ Teeküche
- ✓ Teppichboden
Energieausweis
-
EnergieausweistypBedarfsausweis
-
Baujahr2015
-
Endenergiebedarf105,00 kWh/(m²·a)
Objektbeschreibung
Beschreibung
Dieses hochwertige Bürogebäude im STEP Areal überzeugt mit einem großzügigen Eingangsbereich und barrierefreiem Zugang über zwei Personenaufzüge. Ein außenliegender Sonnenschutz, eine zentrale Gasheizung mit Heizkörpern sowie eine Bauteilaktivierung für Kühlung und Heizung sorgen für ein angenehmes Raumklima. Die innenliegenden Räume werden mechanisch entlüftet, und Hohlraumböden ermöglichen eine flexible Nutzung. Nachhaltigkeit steht im Fokus – das Gebäude ist DGNB-Gold zertifiziert.
Sonstiges
Noch nicht das Richtige? Wir führen weitere Objekte im Großraum Stuttgart. Sprechen Sie mit unseren Beratern. Gemeinsam finden wir Ihr Wunschobjekt! Wir freuen uns auf Ihre Kontaktaufnahme!
Nach den §§ 16, 16 a EnEV ist der Eigentümer, Verkäufer, Vermieter, Verpächter und Leasinggeber bei der Vermarktung von Immobilien verpflichtet, den Energieausweis der Immobilie gemäß der gesetzlichen Vorgabe bei Besichtigungen auszuhändigen bzw. auszuhängen und bestimmte energetische Kennwerte aus dem Energieausweis in die Immobilieninserate und Exposés aufzunehmen. Dieser Nachweis wurde von uns bereits bei den Eigentümern angefordert und kann von Ihnen beim Besichtigungstermin eingesehen werden.
Lage
Das STEP Areal in Stuttgart-Vaihingen ist ein renommierter Technologie- und Gewerbestandort mit exzellenter Infrastruktur. Durch die Nähe zur A8, B27 und dem Stuttgarter Flughafen ist eine optimale Verkehrsanbindung gewährleistet. Der ÖPNV-Anschluss mit S-Bahn und Buslinien ermöglicht eine schnelle Erreichbarkeit der Innenstadt. In direkter Umgebung befinden sich zahlreiche Unternehmen, Gastronomieangebote und Dienstleister.
Flughafen 12 km | Fernbahnhof 2 km | Autobahn 1 km | U/S-Bahn 2 km | Zentrum 10 km | Bus 500 m | Einkaufsmöglichkeiten 500 m | Gaststätten 500 m
Die dargestellte Position der Immobilie ist nur eine ungefähre Angabe.











