Exklusive Einzelhandelsflächen am Löwenmarkt
70499 Stuttgart, Weilimdorf, Einzelhandel zur Miete
Kontaktdaten
-
NameHerr Raphael Jung
-
FirmaIMMORAUM GmbH
-
AnschriftUhlandstraße 14
70182 Stuttgart -
E-Mail
-
Telefon
-
Telefon
-
Mobil
Objektdaten
-
Objekt-IDIRx2552/G1/E2
-
ObjekttypEinzelhandel
-
Adresse70499 Stuttgart, Weilimdorf
-
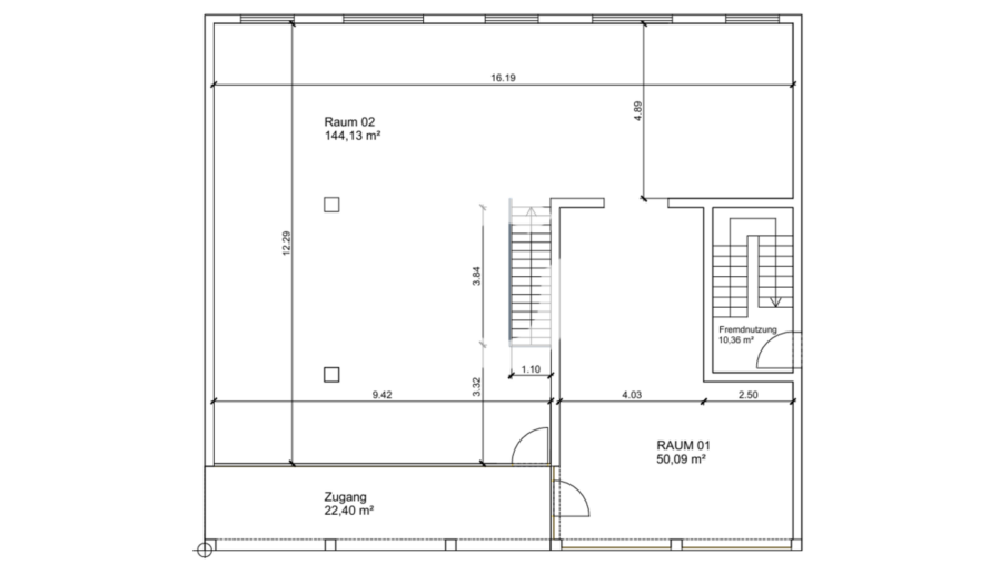
Ladenfläche ca.194,22 m²
-
Zustandgepflegt
-
Miete pro m²18,00 EUR
Objektbeschreibung
Beschreibung
Die angebotene Ladenfläche befindet sich im Erdgeschoss eines gepflegten, architektonisch ansprechenden Wohn- und Geschäftshauses in zentraler Lage. Das Gebäude zeichnet sich durch seine klassische Fassadengestaltung mit großen Fensterflächen im Erdgeschoss aus und fügt sich harmonisch in das gewachsene innerstädtische Umfeld ein.
Die Ladenfläche verfügt über eine großzügige Schaufensterfront, die eine sehr gute Sichtbarkeit sowie optimale Präsentationsmöglichkeiten bietet. Der ebenerdige Zugang ermöglicht einen komfortablen Zutritt für Kunden und Lieferanten. Die klar geschnittene Fläche eignet sich ideal für Einzelhandel, Dienstleistung oder serviceorientierte Konzepte und lässt sich flexibel an individuelle Nutzungskonzepte anpassen.
Durch die Lage im Erdgeschoss eines frequentierten Umfelds profitiert das Objekt von einer guten Laufkundschaft sowie einer hohen Wahrnehmbarkeit im Straßenraum. Insgesamt bietet die Ladenfläche attraktive Voraussetzungen für eine erfolgreiche gewerbliche Nutzung in einem lebendigen und etablierten Umfeld.
Sonstiges
Noch nicht das Richtige? Wir führen weitere Objekte im Großraum Stuttgart. Sprechen Sie mit unseren Beratern. Gemeinsam finden wir Ihr Wunschobjekt! Wir freuen uns auf Ihre Kontaktaufnahme!
Nach den §§ 16, 16 a EnEV ist der Eigentümer, Verkäufer, Vermieter, Verpächter und Leasinggeber bei der Vermarktung von Immobilien verpflichtet, den Energieausweis der Immobilie gemäß der gesetzlichen Vorgabe bei Besichtigungen auszuhändigen bzw. auszuhängen und bestimmte energetische Kennwerte aus dem Energieausweis in die Immobilieninserate und Exposés aufzunehmen. Dieser Nachweis wurde von uns bereits bei den Eigentümern angefordert und kann von Ihnen beim Besichtigungstermin eingesehen werden.
Lage
Die Einzelhandelfläche befindet sich in einer zentralen Lage innerhalb eines etablierten Stadtteilzentrums mit hervorragender Infrastruktur. Das Umfeld bietet eine ausgewogene Mischung aus Handel, Dienstleistung und Gastronomie und sorgt für eine hohe Aufenthaltsqualität. Dank der sehr guten Anbindung an den öffentlichen Nahverkehr sowie an das überregionale Straßennetz sind sowohl das Stadtzentrum als auch regionale und überregionale Ziele schnell erreichbar. Die Lage verbindet eine hohe Sichtbarkeit und gute Erreichbarkeit mit einem lebendigen, urbanen Umfeld und eignet sich ideal für vielfältige gewerbliche Nutzungen.
Flughafen 22 km | Fernbahnhof 10 km | Autobahn 2 km | U/S-Bahn 10 m | Zentrum 10 m | Bus 5 km | Einkaufsmöglichkeiten 10 m | Gaststätten 10 m
Die dargestellte Position der Immobilie ist nur eine ungefähre Angabe.












