Top Praxis-/Bürofläche | Ludwigsburg Mitte | Perfekte Anbindung
71638 Ludwigsburg, Bürohaus zur Miete
Kontaktdaten
-
NameHerr Marvin Rometsch
-
FirmaIMMORAUM GmbH
-
AnschriftUhlandstraße 14
70182 Stuttgart -
E-Mail
-
Telefon
-
Telefon
-
Mobil
Objektdaten
-
Objekt-IDIRx2750/G1/E2/Eh1
-
ObjekttypenBüro/Praxis, Bürohaus
-
Adresse71638 Ludwigsburg
-
Bürofläche ca.400 m²
-
Büroteilfläche ca.400 m²
-
Zustandgepflegt
-
Mieterprovision (gewerblich)provisionsfrei
-
Miete pro m²17,50 EUR
Objektbeschreibung
Beschreibung
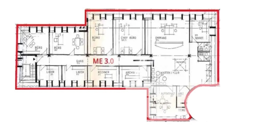
Die angebotenen Büro- bzw. Praxisflächen befinden sich in einem etablierten Gewerbeobjekt in zentraler Lage von Ludwigsburg und eignen sich ideal für medizinische Nutzungen sowie klassische Büro- und Dienstleistungskonzepte.
Die Flächen überzeugen durch funktionale Grundrisse und eine flexible Raumaufteilung, die sich individuell an unterschiedliche Nutzungskonzepte anpassen lässt. Durch die teilweise vorhandene Infrastruktur – insbesondere im Hinblick auf medizinische Nutzungen – bestehen sehr gute Voraussetzungen für Ärzte, Therapieeinrichtungen oder vergleichbare Dienstleister.
Das Gebäude ist modern erschlossen und verfügt über einen Personenaufzug, wodurch ein komfortabler Zugang für Mitarbeiter, Kunden und Patienten gewährleistet ist. Je nach Verfügbarkeit ist ein kurzfristiger Bezug möglich, sodass eine zügige Umsetzung individueller Nutzungskonzepte realisiert werden kann.
In Kombination mit der zentralen Lage in unmittelbarer Nähe zum Bahnhof sowie der sehr guten regionalen und überregionalen Anbindung stellen die Flächen eine attraktive Lösung für Unternehmen dar, die Wert auf Erreichbarkeit, Funktionalität und ein etabliertes Umfeld legen.
Ausstattung
- Kurzfristig verfügbar
- Personenaufzug im Gebäude
- Teilweise vorhandene medizinische Infrastruktur (u. a. Handwaschbecken)
- Ideal geeignet für Praxis-, Therapie- oder Büroeinheiten
- Flexible Raumaufteilung möglich
- Laminatboden in den Büroflächen
- Außenliegender Sonnenschutz
- Teeküche vorhanden
- Abgehängte Decke
- Deckenleuchten
Sonstiges
Noch nicht das Richtige? Wir führen weitere Objekte im Großraum Stuttgart. Sprechen Sie mit unseren Beratern. Gemeinsam finden wir Ihr Wunschobjekt! Wir freuen uns auf Ihre Kontaktaufnahme!
Nach den §§ 16, 16 a EnEV ist der Eigentümer, Verkäufer, Vermieter, Verpächter und Leasinggeber bei der Vermarktung von Immobilien verpflichtet, den Energieausweis der Immobilie gemäß der gesetzlichen Vorgabe bei Besichtigungen auszuhändigen bzw. auszuhängen und bestimmte energetische Kennwerte aus dem Energieausweis in die Immobilieninserate und Exposés aufzunehmen. Dieser Nachweis wurde von uns bereits bei den Eigentümern angefordert und kann von Ihnen beim Besichtigungstermin eingesehen werden.
Lage
Der Standort in Ludwigsburg Süd vereint eine sehr gute regionale Anbindung mit einer funktionierenden urbanen Infrastruktur. Die Nähe zu Stuttgart sowie die schnelle Erreichbarkeit über Straße und Schiene machen die Fläche besonders attraktiv für Unternehmen und Praxen. Gleichzeitig bietet das direkte Umfeld eine hohe Aufenthaltsqualität durch kurze Wege zu Nahversorgung und Gastronomie.
Flughafen 30 km | Fernbahnhof 1,50 km | Autobahn 4 km | U/S-Bahn 1,50 km | Zentrum 1,50 km | Bus 200 m | Einkaufsmöglichkeiten 500 m | Gaststätten 300 m
Die dargestellte Position der Immobilie ist nur eine ungefähre Angabe.












