Exklusive Büroflächen im Gerber – Stuttgart-Mitte
70178 Stuttgart, Mitte, Bürohaus zur Miete
Kontaktdaten
-
NameHerr Marvin Rometsch
-
FirmaIMMORAUM GmbH
-
AnschriftUhlandstraße 14
70182 Stuttgart -
E-Mail
-
Telefon
-
Telefon
-
Mobil
Objektdaten
-
Objekt-IDIRx1675/G1/E3/Eh3
-
ObjekttypenBüro/Praxis, Bürohaus
-
Adresse70178 Stuttgart, Mitte
-
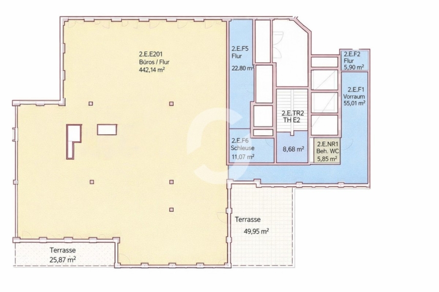
Bürofläche ca.555,43 m²
-
Büroteilfläche ca.555,43 m²
-
KücheTeeküche
-
Baujahr2014
-
Ausstattunggehoben
-
Mieterprovision (gewerblich)provisionspflichtig
-
Miete pro m²27,00 EUR
-
Nebenkosten4,50 EUR
Ausstattung / Merkmale
- ✓ Doppelboden
- ✓ DV-Verkabelung
- ✓ Personenaufzug
- ✓ Teeküche
- ✓ Teppichboden
Energieausweis
-
EnergieausweistypVerbrauchsausweis
-
Baujahr2014
Objektbeschreibung
Beschreibung
Das Objekt liegt in Stuttgart Mitte und ist sehr gepflegt, nahezu neuwertig. Durch die Lage im vierten Obergeschoss hat man einen schönen und weiten Blick auf die Stuttgarter Stadt. Besonders besticht das Gerber durch seine einzigartige Architektur, angepasst an die Altbauten der Innenstadt sowie an die heutige Moderne. Die Bürofläche hat seine "eigene Mikrolage" durch die vielen Geschäfte, die im Gerber selbst angemietet sind.
Die Fläche befindet sich in einem sehr guten Zustand. Es stehen USM sowie Vitra Möbel zur Ablöse zur Verfügung.
Stellplätze stehen über den Parkhausbetreiber zur Verfügung.
Ausstattung
- Baujahr: 2014
- Bodenbelag: Teppich
- Deckenart: Abgehängte Decke
- Sonnenschutz: Sonnenschutz außen
- Klimatisierung: Betonkernaktivierung
- Beleuchtung: Stehleuchten
- Verkabelung: Bodentanks, EDV-Verkabelung, Glasfaser
- Großzügige Terrassenfläche
Sonstiges
Noch nicht das Richtige? Wir führen weitere Objekte im Großraum Stuttgart. Sprechen Sie mit unseren Beratern. Gemeinsam finden wir Ihr Wunschobjekt! Wir freuen uns auf Ihre Kontaktaufnahme!
Nach den §§ 16, 16 a EnEV ist der Eigentümer, Verkäufer, Vermieter, Verpächter und Leasinggeber bei der Vermarktung von Immobilien verpflichtet, den Energieausweis der Immobilie gemäß der gesetzlichen Vorgabe bei Besichtigungen auszuhändigen bzw. auszuhängen und bestimmte energetische Kennwerte aus dem Energieausweis in die Immobilieninserate und Exposés aufzunehmen. Dieser Nachweis wurde von uns bereits bei den Eigentümern angefordert und kann von Ihnen beim Besichtigungstermin eingesehen werden.
Das Angebot ist für den Mieter provisionspflichtig. Im Falle der Anmietung hat Immoraum einen Anspruch gegenüber dem Mieter auf Zahlung einer Mieterprovision in Höhe von 2 Nettokaltmieten zzgl. gesetz. Mwst.
Lage
Die Büroeinheit befindet sich im Gerber, einem Gebäudekomplex in der Stuttgarter Innenstadt. Durch die zentrale Lage in der Innenstadt besteht eine direkte Anbindung an den Stuttgarter Hauptbahnhof mit Nah- und Fernverbindungen. In knapp 15 Minuten ist auch der Stuttgarter Flughafen sowie das Messegelände zu erreichen. Es bestehen direkte Anbindungen zur B27 und B14. Indirekte Anbindungen bestehen zur B10, A8 und A81. Das Gerber ist eines der beliebtesten Einkaufszentren der Suttgarter Innenstadt. Die Lage ist sehr vielseitig in vielen Hinsichten: Die Gegend bietet ein großes kulinarisches Angebot, viele Einkaufsmöglichkeiten und die Nähe zum Stuttgarter Feuersee. Auch zur Hauptattraktion der Stuttgarter Stadt, dem Schlossplatz, ist es nicht weit. Fußläufig sind sowohl S- sowie U-Bahn zu erreichen.
Flughafen 13,20 km | Fernbahnhof 2,60 km | Autobahn 10,20 km | U/S-Bahn 450 m | Zentrum 1,10 km | Bus 80 m | Einkaufsmöglichkeiten 100 m | Gaststätten 100 m
Die dargestellte Position der Immobilie ist nur eine ungefähre Angabe.










