Büroflächen mit Terrasse – in zentraler Lage von Bad Cannstatt
70372 Stuttgart, Bad Cannstatt, Bürohaus zur Miete
Kontaktdaten
-
NameHerr Sven Gruber
-
FirmaIMMORAUM GmbH
-
AnschriftUhlandstraße 14
70182 Stuttgart -
E-Mail
-
Telefon
-
Telefon
-
Mobil
Objektdaten
-
Objekt-IDIR4116/G1/E3/Eh1
-
ObjekttypenBüro/Praxis, Bürohaus
-
Adresse70372 Stuttgart, Bad Cannstatt
-
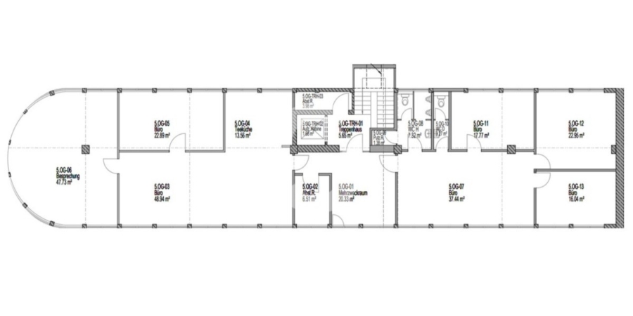
Bürofläche ca.268 m²
-
Büroteilfläche ca.268 m²
-
KücheTeeküche
-
Wesentlicher EnergieträgerFernwärme
-
Zustandgepflegt
-
Mieterprovision (gewerblich)provisionsfrei
-
Miete pro m²13,00 EUR
-
Nebenkosten2,40 EUR
Ausstattung / Merkmale
- ✓ Personenaufzug
- ✓ Teeküche
Energieausweis
-
EnergieausweistypVerbrauchsausweis
-
Wesentlicher EnergieträgerFernwärme
-
Endenergieverbrauch Strom68,80 kWh/(m²·a)
-
Endenergieverbrauch Wärme108,20 kWh/(m²·a)
Objektbeschreibung
Beschreibung
Die Bürofläche liegt in einer auffälligen Immobilie an der Ortseinfahrt Bad Cannstatt mit guter und werbewirksamer Sichtlage. Die repräsentative Immobilie ist in einem sehr guten Zustand und sehr gepflegt. Der Eingangsbereich und das Treppenhaus sind freundlich und modern gestaltet. Ebenso steht ein neuwertiger Aufzug zur Verfügung.
Bei Bedarf werden die Flächen vor Einzug des neuen Mieters neu ausgebaut. Dabei können sie entsprechend den Anforderungen des neuen Mieters gestaltet werden. In Abstimmung mit dem Eigentümer besteht sowohl bei der Grundrissgestaltung als auch bei der Materialwahl die Möglichkeit mitzubestimmen.
Lagerflächen befinden sich auf dem Gelände bzw. können bei Bedarf auch innerhalb des Gebäudes dargestellt werden.
Ausstattung
- gepflegte Immobilie
- neuwertiger Aufzug
- Neuausbau bei Bedarf
- Teppichboden
- flexibler Grundriss
Sonstiges
Noch nicht das Richtige? Wir führen weitere Objekte im Großraum Stuttgart. Sprechen Sie mit unseren Beratern. Gemeinsam finden wir Ihr Wunschobjekt! Wir freuen uns auf Ihre Kontaktaufnahme!
Nach den §§ 16, 16 a EnEV ist der Eigentümer, Verkäufer, Vermieter, Verpächter und Leasinggeber bei der Vermarktung von Immobilien verpflichtet, den Energieausweis der Immobilie gemäß der gesetzlichen Vorgabe bei Besichtigungen auszuhändigen bzw. auszuhängen und bestimmte energetische Kennwerte aus dem Energieausweis in die Immobilieninserate und Exposés aufzunehmen. Dieser Nachweis wurde von uns bereits bei den Eigentümern angefordert und kann von Ihnen beim Besichtigungstermin eingesehen werden.
Lage
Das Büro liegt in zentraler Lage von Bad Canstatt und verfügt über eine sehr gute Erreichbarkeit sowohl mit dem ÖPNV als auch mit dem PKW. Nur wenige Minuten Fußweg entfernt liegt der S-Bahnhof von Bad Cannstatt entfernt. Hier verkehren etliche Linien mit Anschluss u. a. an den Hauptbahnhof Stuttgart, den Flughafen und das Messegelände sowie Schorndorf und Kirchheim/Teck. Mit dem PKW ist man schnell auf der B 10 mit Anschluss an die B 14 und die umliegenden Autobahnen (A 8 und A 81). Geschäfte des täglichen Bedarfs, Banken, Ärzte, Restaurants und Cafés – dies alles findet man in der nahegelegenen Cannstatter Innenstadt.
Flughafen 16,60 km | Fernbahnhof 3,90 km | Autobahn 12,90 km | U/S-Bahn 300 m | Zentrum 3,90 km | Bus 230 m | Einkaufsmöglichkeiten 280 m | Gaststätten 450 m
Die dargestellte Position der Immobilie ist nur eine ungefähre Angabe.










