Lichtdurchflutete Bürofläche mit Glasbüros & flexiblem Ausbau
70597 Stuttgart, Degerloch, Bürohaus zur Miete
Kontaktdaten
-
NameHerr Sven Gruber
-
FirmaIMMORAUM GmbH
-
AnschriftUhlandstraße 14
70182 Stuttgart -
E-Mail
-
Telefon
-
Telefon
-
Mobil
Objektdaten
-
Objekt-IDIR3045/E1/Eh2
-
ObjekttypenBüro/Praxis, Bürohaus
-
Adresse70597 Stuttgart, Degerloch
-
Etagen im Haus2
-
Bürofläche ca.205 m²
-
Gesamtfläche ca.205 m²
-
Büroteilfläche ca.205 m²
-
HeizungsartZentralheizung
-
Baujahr1985
-
Zustandnach Vereinbarung
-
Mieterprovision (gewerblich)Provisionsfrei
-
Preisauf Anfrage
Ausstattung / Merkmale
- ✓ Personenaufzug
Objektbeschreibung
Beschreibung
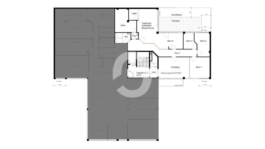
Vielzweckfläche: 380 m² bestens geeignet für Produktion, Austellung, Lager oder Büro! Im 2. OG mit ca. 380 m²: Zugang über Treppenhaus und Aufzug. Büroflächen, Teeküche, Sanitär-/Sozialräume. Rundumverglasung mit schöner Aussicht Bis zu weiteren 570 m² Mehrzweckflächen können im Objekt hinzugemietet werden.
Ausstattung
Das Gebäude verfügt über ein zentrales Treppenhaus mit einem Lastenaufzug der über eine Tragkraft von 1.000kg verfügt. Die zentale Heizungsanlage wurde 2013 installiert und arbeitet energieschonend. Die Büroflächen im 1. OG sind vollständig klimatisiert.
Sonstiges
Das Objekt verfügt über 2.200 m² Gesamtfläche. Die restlichen Flächen von 1.250 m² werden von einem Druckereibetrieb genutzt und wurden aufwendig saniert und modernisiert. Die freien Flächen sind größtenteils entkernt und können/sollen durch die zukünftigen Mieter frei gestaltet werden.
Lage
Das Objekt befindet sich im Industriegebiet "Tränke" in Stuttgart / Degerloch. Die Verkehrsanbindung ist optimal. Die Autobahn A8 Karlsruhe - München ist nur 5 Minuten entfernt, die B27 Stuttgart - Tübingen vor der Tür. Der Flughafen Stuttgart ist in 8 Minuten erreichbar. Über die Weinsteige oder über den Stuttgarter Westen benötigen Sie nur wenige Minuten in die Innenstadt. Mit den öffentlichen Verkehrsmitteln erreichen Sie die Innenstadt bzw. den Hauptbahnhof bequem mit Bus und Stadtbahn.
Flughafen 8 km | Fernbahnhof 5,50 km | Autobahn 2 km | U/S-Bahn 500 m | Zentrum 500 m | Bus 200 m | Einkaufsmöglichkeiten 500 m | Gaststätten 500 m
Die dargestellte Position der Immobilie ist nur eine ungefähre Angabe.












