Bürofläche inkl. Testgarage
71063 Sindelfingen, Bürohaus zur Miete
Kontaktdaten
-
NameHerr Sven Gruber
-
FirmaIMMORAUM GmbH
-
AnschriftUhlandstraße 14
70182 Stuttgart -
E-Mail
-
Telefon
-
Telefon
-
Mobil
Objektdaten
-
Objekt-IDIRx1607
-
ObjekttypenBüro/Praxis, Bürohaus
-
Adresse71063 Sindelfingen
-
Etagen im Haus4
-
Bürofläche ca.4.498,42 m²
-
Büroteilfläche ca.119 m²
-
KücheTeeküche
-
Wesentlicher EnergieträgerGas
-
Baujahr1995
-
Zustandgepflegt
-
AusstattungStandard
-
Mieterprovision (gewerblich)provisionsfrei
-
Miete pro m²12,70 EUR
-
Nebenkosten2,30 EUR
Ausstattung / Merkmale
- ✓ DV-Verkabelung
- ✓ Personenaufzug
- ✓ Teeküche
- ✓ Teppichboden
Objektbeschreibung
Beschreibung
Objektbeschreibung – Kolumbustraße 31, Sindelfingen
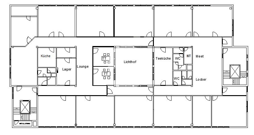
Die Büroflächen in der Kolumbustraße 31 in Sindelfingen bieten insgesamt ca. 4.620 m² flexibel nutzbare Fläche verteilt auf mehrere Ebenen. Dank variabler Trennwandsysteme lassen sich unterschiedlichste Raumkonzepte realisieren – von Open Space über Kombistrukturen bis hin zu klassischen Einzelbüros.
Highlight des Objekts ist eine großzügige Terrasse, eine Teeküche sowie getrennte Sanitärbereiche. Moderne Brüstungs- und Kabelkanäle sichern eine effiziente IT- und Stromversorgung.
Zum Objekt gehört zudem eine eigene Tiefgarage mit separatem Sektionaltor, die sich ideal für Mitarbeiterparkplätze oder Fuhrparkmanagement eignet.
Highlights auf einen Blick
insgesamt
ca. 4.620 m² flexibel teilbare Büroflächen
großzügige Terrasse
Teeküche
getrennte WCs
variable Trennwandsysteme
moderne
Infrastruktur (Brüstungs-/Kabelkanäle)
eigene Testgarage mit eigenem Sektionaltor
Flächen auf mehreren Etagen verfügbar
Sonstiges
Noch nicht das Richtige? Wir führen weitere Objekte im Großraum Stuttgart. Sprechen Sie mit unseren Beratern. Gemeinsam finden wir Ihr Wunschobjekt! Wir freuen uns auf Ihre Kontaktaufnahme!
Nach den §§ 16, 16 a EnEV ist der Eigentümer, Verkäufer, Vermieter, Verpächter und Leasinggeber bei der Vermarktung von Immobilien verpflichtet, den Energieausweis der Immobilie gemäß der gesetzlichen Vorgabe bei Besichtigungen auszuhändigen bzw. auszuhängen und bestimmte energetische Kennwerte aus dem Energieausweis in die Immobilieninserate und Exposés aufzunehmen. Dieser Nachweis wurde von uns bereits bei den Eigentümern angefordert und kann von Ihnen beim Besichtigungstermin eingesehen werden.
Lage
Das Büro in der Kolumbustraße 31, Sindelfingen, überzeugt durch eine zentrale Lage mit guter Infrastruktur und schneller Anbindung an öffentliche Verkehrsmittel und Autobahnen. Als Teil der Metropolregion Stuttgart bietet Sindelfingen eine starke industrielle Basis und eine hervorragende Lebensqualität, ideal für Unternehmen in einem dynamischen Umfeld.
Flughafen 20 km | Fernbahnhof 1,60 km | Autobahn 3 km | U/S-Bahn 1,60 km | Zentrum 20 km | Bus 500 m | Einkaufsmöglichkeiten 1,30 km | Gaststätten 1,60 km
71063 Sindelfingen, Deutschland (auf Google Maps ansehen)





























