Großzügige Wohnfläche – ideal für Wohngemeinschaften
70372 Stuttgart, Bad Cannstatt, Wohnung zur Miete
Kontaktdaten
-
NameHerr Samuel Grohmann
-
FirmaIMMORAUM GmbH
-
AnschriftUhlandstraße 14
70182 Stuttgart -
E-Mail
-
Telefon
Objektdaten
-
Objekt-IDIRx2309/G1/E3
-
ObjekttypWohnung
-
Adresse70372 Stuttgart, Bad Cannstatt
-
Etage4
-
Etagen im Haus4
-
Wohnfläche ca.150 m²
-
Bürofläche ca.150 m²
-
Gesamtfläche ca.150 m²
-
Büroteilfläche ca.150 m²
-
Zimmer7
-
Wesentlicher EnergieträgerÖl
-
Zustandgepflegt
-
Stellplätze gesamt1
-
Provisionprovisionsfrei gemäß AGB
provisionspflichtig gemäß AGB -
Nettokaltmiete2.475,00 EUR
-
Kaltmiete2.475,00 EUR
-
Miete pro m²16,50 EUR
-
Nebenkosten2,00 EUR
Ausstattung / Merkmale
- ✓ Laminatboden
Energieausweis
-
EnergieausweistypBedarfsausweis
-
Baujahr-
-
Wesentlicher EnergieträgerÖl
-
Endenergiebedarf159,10 kWh/(m²·a)
Objektbeschreibung
Beschreibung
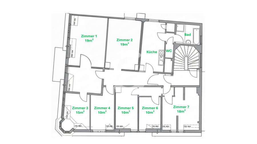
Diese großzügige 7-Zimmer-Wohnung in Stuttgart-Bad Cannstatt bietet mit rund 150 m² Wohnfläche ideale Voraussetzungen für eine Wohngemeinschaft oder als Mitarbeiterwohnung.
Die Einheit befindet sich in einem gepflegten Altbau und überzeugt durch eine klare Raumstruktur mit sieben separat nutzbaren Zimmern, einer geräumigen Küche, einem Tageslichtbad sowie einem langen Flur mit guter Aufteilung.
Die Räume sind hell, frisch gestrichen und mit modernem, pflegeleichtem Vinylboden ausgestattet. Die Küche und das Bad sind in einem funktionalen Zustand und bieten die Grundlage für eine flexible Nutzung – sei es als private WG, Firmen-WG oder gemeinschaftliches Wohnen.
Durch die vielen Zimmer bietet die Wohnung ausreichend Platz.
Sonstiges
Noch nicht das Richtige? Wir führen weitere Objekte im Großraum Stuttgart. Sprechen Sie mit unseren Beratern. Gemeinsam finden wir Ihr Wunschobjekt! Wir freuen uns auf Ihre Kontaktaufnahme!
Nach den §§ 16, 16 a EnEV ist der Eigentümer, Verkäufer, Vermieter, Verpächter und Leasinggeber bei der Vermarktung von Immobilien verpflichtet, den Energieausweis der Immobilie gemäß der gesetzlichen Vorgabe bei Besichtigungen auszuhändigen bzw. auszuhängen und bestimmte energetische Kennwerte aus dem Energieausweis in die Immobilieninserate und Exposés aufzunehmen. Dieser Nachweis wurde von uns bereits bei den Eigentümern angefordert und kann von Ihnen beim Besichtigungstermin eingesehen werden.
Das Angebot ist für den Mieter provisionsfrei.
Lage
Die Wohnung liegt mitten im beliebten Stadtteil Stuttgart-Bad Cannstatt. Einkaufsmöglichkeiten, Cafés, Restaurants sowie Bus- und S-Bahn-Haltestellen sind bequem zu Fuß erreichbar.
Der Wilhelmsplatz, die König-Karl-Straße und das Cannstatter Carré befinden sich in unmittelbarer Nähe. Auch das Klinikum Stuttgart, die DHBW sowie der Neckar mit seinen Grünflächen liegen nur wenige Minuten entfernt.
Dank der guten Anbindung an den ÖPNV und die Nähe zur Innenstadt ist die Lage sowohl für Studierende als auch Berufstätige äußerst attraktiv.
Kindergarten 400 m | Grundschule 500 m | Hauptschule 800 m | Realschule 700 m | Gesamtschule 1 km | Gymnasium 600 m | Flughafen 16,80 km | Fernbahnhof 4,20 km | Autobahn 13,40 km | U/S-Bahn 170 m | Zentrum 4,80 km | Bus 350 m | Einkaufsmöglichkeiten 700 m | Gaststätten 100 m
70372 Stuttgart, Bad Cannstatt, Deutschland (auf Google Maps ansehen)











