Attraktive Gastronomiefläche in Stuttgart-Nord – gefragtes Viertel
70191 Stuttgart, Nord, Gastronomie zur Miete
Kontaktdaten
-
NameHerr Maximilian Unterreiner
-
FirmaIMMORAUM GmbH
-
AnschriftUhlandstraße 14
70182 Stuttgart -
Telefon
-
Telefon
Objektdaten
-
Objekt-IDIR217/G2/E2
-
ObjekttypenGastgewerbe, Gastronomie
-
Adresse70191 Stuttgart, Nord
-
Etage5
-
Ladenfläche ca.368 m²
-
Gastrofläche ca.432 m²
-
HeizungsartZentralheizung, Fernwärme
-
Baujahr1997
-
Zustandgepflegt
-
AusstattungStandard
-
Mieterprovision (gewerblich)provisionspflichtig gemäß AGB
-
Nettokaltmiete15,00 EUR
-
Kaltmiete15,00 EUR
-
Miete pro m²5,50 EUR
Ausstattung / Merkmale
- ✓ Lastenaufzug
- ✓ Personenaufzug
Objektbeschreibung
Beschreibung
Die angebotene Gastrofläche liegt im Erdgeschoss und Untergeschoss eines modernen Bürogebäudes in direkter Nachbarschaft zum ehemaligen UFA-Palast. Die Lage innerhalb des Gebäudekomplexes bietet eine gute Sichtbarkeit sowie eine frequenzstarke Umgebung mit weiteren gastronomischen Nutzungen im Erdgeschoss.
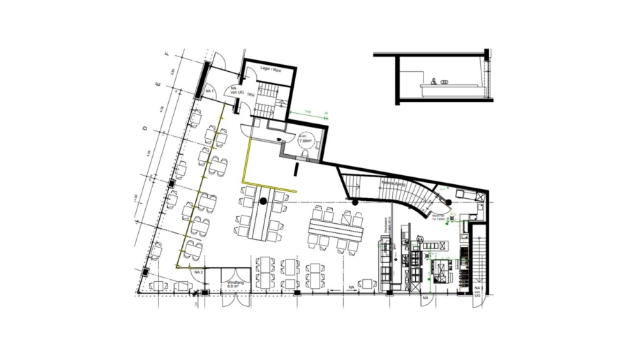
Die Einheit ist funktional und betriebsbereit ausgestattet. Eine Außenbestuhlung ist darstellbar. Küche, Theke und Lüftungsanlage sind vorhanden, ebenso Kühlräume im Untergeschoss, Nebenflächen, Umkleiden und Sanitäreinrichtungen. Der Gastraum verfügt über eine neu verlegte Fußbodenheizung.
Das Gebäude verfügt über eine zweigeschossige Tiefgarage, separate Treppenhäuser sowie Personen- und Lastenaufzüge, die eine komfortable Anlieferung ermöglichen.
Ausstattung
- Außenbestuhlung darstellbar
- Küche vorhanden
-
Thekenbereich vorhanden
- Leistungsfähige Lüftungsanlage vorhanden
- Kühlräume im Untergeschoss zur fachgerechten Lagerung
-
Nebenflächen für Lager und Betrieb
- Umkleidekabinen für Mitarbeitende vorhanden
-
Sanitäreinrichtungen vorhanden
- Neu verlegte Fußbodenheizung im Gastraum
-
Gebäude mit zweigeschossiger Tiefgarage
- Mehrere Personenaufzüge sowie Lastenaufzüge für Anlieferung und interne Erschließung
- Zwei getrennte Treppenhäuser im Gebäude
Sonstiges
Noch nicht das Richtige? Wir führen weitere Objekte im Großraum Stuttgart. Sprechen Sie mit unseren Beratern. Gemeinsam finden wir Ihr Wunschobjekt! Wir freuen uns auf Ihre Kontaktaufnahme!
Nach den §§ 16, 16 a EnEV ist der Eigentümer, Verkäufer, Vermieter, Verpächter und Leasinggeber bei der Vermarktung von Immobilien verpflichtet, den Energieausweis der Immobilie gemäß der gesetzlichen Vorgabe bei Besichtigungen auszuhändigen bzw. auszuhängen und bestimmte energetische Kennwerte aus dem Energieausweis in die Immobilieninserate und Exposés aufzunehmen. Dieser Nachweis wurde von uns bereits bei den Eigentümern angefordert und kann von Ihnen beim Besichtigungstermin eingesehen werden.
Das Angebot ist für den Mieter provisionspflichtig. Im Falle der Anmietung hat Immoraum einen Anspruch gegenüber dem Mieter auf Zahlung einer Mieterprovision zzgl. gesetz. Mwst., gemäß unseren AGBs.
Lage
Die angebotene Gastronomiefläche liegt an einem gefragten Dienstleistungsstandort im Stuttgarter Norden. Die verkehrstechnische Anbindung ist, bedingt durch die Nähe zum Hauptbahnhof und dem Nordbahnhof, als sehr gut einzustufen. Bis zur nächsten Autobahn sind es nur 15 Fahrminuten, in die Innenstadt nur 5 Fahrminuten. Mit zahlreichen Dienstleistungsunternehmen gehört das Gebiet rund um die Immobilie zu den bedeutendsten Dienstleistungsstandorten der Stadt.
Flughafen 15 km | Fernbahnhof 2 km | Autobahn 16 km | U/S-Bahn 1 km | Zentrum 1 km | Bus 1 km | Einkaufsmöglichkeiten 1 km | Gaststätten 1 km
70191 Stuttgart, Nord, Deutschland (auf Google Maps ansehen)












