Neubau Gewerbeeinheiten
70619 Stuttgart, Sillenbuch, Ladenfläche zur Miete
Kontaktdaten
-
NameHerr Sven Gruber
-
FirmaIMMORAUM GmbH
-
AnschriftUhlandstraße 14
70182 Stuttgart -
E-Mail
-
Telefon
-
Telefon
-
Mobil
Objektdaten
-
Objekt-IDIRx2384/G1/E1/Eh1
-
ObjekttypenEinzelhandel, Ladenfläche
-
Adresse70619 Stuttgart, Sillenbuch
-
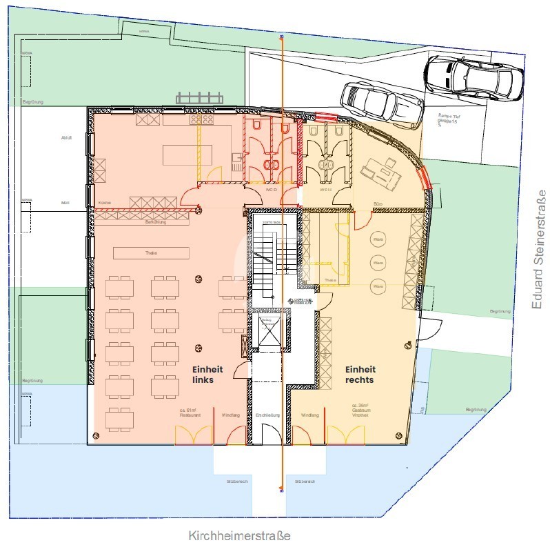
Ladenfläche ca.140 m²
-
Baujahr2025
-
ZustandErstbezug
-
Mieterprovision (gewerblich)provisionsfrei
-
Preisauf Anfrage
Objektbeschreibung
Beschreibung
Moderne Gewerbefläche im Neubau – flexibel nutzbar für Büro, Laden oder Gastronomie
Diese hochwertige Neubaufläche bietet vielseitige Nutzungsmöglichkeiten – ob als Büro, Ladenfläche oder Gastronomie. Die Immobilie überzeugt durch moderne Ausstattung und durchdachte Bauweise:
Effiziente Gas-Brennwertheizung mit Solarthermieunterstützung für Warmwasser
Dezentrales Lüftungssystem mit Wärmerückgewinnung sorgt für ein angenehmes Raumklima
Massiv gebaute Außenwände aus Kalksandstein und 3-fach verglaste Kunststofffenster (Schallschutzklasse 3) garantieren Ruhe und Energieeffizienz
Stellplätze direkt am Objekt vorhanden
Außenanlagen mit Begrünung, Beleuchtung und Fahrradstellplätzen runden das Gesamtbild ab
Eine ideale Gelegenheit für Ihr Business in einem modernen und nachhaltigen Umfeld!
Sonstiges
Noch nicht das Richtige? Wir führen weitere Objekte im Großraum Stuttgart. Sprechen Sie mit unseren Beratern. Gemeinsam finden wir Ihr Wunschobjekt! Wir freuen uns auf Ihre Kontaktaufnahme!
Nach den §§ 16, 16 a EnEV ist der Eigentümer, Verkäufer, Vermieter, Verpächter und Leasinggeber bei der Vermarktung von Immobilien verpflichtet, den Energieausweis der Immobilie gemäß der gesetzlichen Vorgabe bei Besichtigungen auszuhändigen bzw. auszuhängen und bestimmte energetische Kennwerte aus dem Energieausweis in die Immobilieninserate und Exposés aufzunehmen. Dieser Nachweis wurde von uns bereits bei den Eigentümern angefordert und kann von Ihnen beim Besichtigungstermin eingesehen werden.
Lage
Stuttgart ist ein bedeutendes wirtschaftliches und kulturelles Zentrum Süddeutschlands mit hoher Kaufkraft und stabiler Nachfrage im Einzelhandel. Der Stadtteil Sillenbuch gehört zu den bevorzugten Wohnlagen Stuttgarts und überzeugt durch seine gute Erreichbarkeit sowie die Nähe zur Innenstadt und zur B10/B27.
Flughafen 10,30 km | Fernbahnhof 7,40 km | Autobahn 9,70 km | U/S-Bahn 100 m | Zentrum 6,80 km | Bus 100 m | Einkaufsmöglichkeiten 120 m | Gaststätten 100 m
70619 Stuttgart, Sillenbuch, Deutschland (auf Google Maps ansehen)










