Büro + Lagerfläche | Leinfelden | S-Bahn Lage
70771 Leinfelden-Echterdingen, Büro/Praxis zur Miete
Kontaktdaten
-
NameHerr Samuel Grohmann
-
FirmaIMMORAUM GmbH
-
AnschriftUhlandstraße 14
70182 Stuttgart -
E-Mail
-
Telefon
Objektdaten
-
Objekt-IDIRx2768
-
ObjekttypBüro/Praxis
-
Adresse70771 Leinfelden-Echterdingen
-
Etagen im Haus2
-
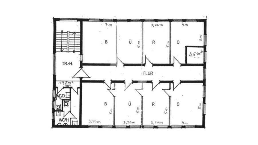
Bürofläche ca.196 m²
-
Lagerfläche ca.190 m²
-
Büroteilfläche ca.196 m²
-
Wesentlicher EnergieträgerGas
-
Zustandgepflegt
-
Mieterprovision (gewerblich)provisionspflichtig gemäß AGB
-
Nettokaltmiete3.474,00 EUR
-
Kaltmiete3.474,00 EUR
Objektbeschreibung
Beschreibung
Die Gewerbeeinheit kombiniert funktionale Werkstatt- und Lagerflächen im Erdgeschoss mit hellen Büroflächen im Obergeschoss. Die Räume sind effizient geschnitten und vielseitig nutzbar – ideal für Unternehmen mit kombiniertem Flächenbedarf.
Die Büroflächen überzeugen durch gute Belichtung und ein angenehmes Arbeitsumfeld. Direkt am Gebäude stehen PKW-Stellplätze zur Verfügung. Die S- und U-Bahn-Station "Leinfelden Mitte" ist fußläufig erreichbar.
Ausstattung
- Robuster Industrieboden im Lager-/Werkstattbereich
- Laminatboden in den Büroflächen
- Gipskartonwände für flexible Raumaufteilung
- Abgehängte Decken mit integrierten Leuchtpanelen in den Büros
-
Rohdeckenstruktur mit Deckenbeleuchtung im Lagerbereich
- Außenliegender Sonnenschutz
- Öffenbare Fenster
- EDV-Verkabelung vorhanden
- Verkabelung über Brüstungskanäle in den Büroflächen
- Teeküche vorhanden
-
4 Außenstellplätze
Sonstiges
Noch nicht das Richtige? Wir führen weitere Objekte im Großraum Stuttgart. Sprechen Sie mit unseren Beratern. Gemeinsam finden wir Ihr Wunschobjekt! Wir freuen uns auf Ihre Kontaktaufnahme!
Nach den §§ 16, 16 a EnEV ist der Eigentümer, Verkäufer, Vermieter, Verpächter und Leasinggeber bei der Vermarktung von Immobilien verpflichtet, den Energieausweis der Immobilie gemäß der gesetzlichen Vorgabe bei Besichtigungen auszuhändigen bzw. auszuhängen und bestimmte energetische Kennwerte aus dem Energieausweis in die Immobilieninserate und Exposés aufzunehmen. Dieser Nachweis wurde von uns bereits bei den Eigentümern angefordert und kann von Ihnen beim Besichtigungstermin eingesehen werden.
Das Angebot ist für den Mieter provisionspflichtig. Im Falle der Anmietung hat Immoraum einen Anspruch gegenüber dem Mieter auf Zahlung einer Mieterprovision zzgl. gesetz. Mwst., gemäß unseren AGB.
Lage
Der Standort überzeugt durch seine Lage in einem etablierten Gewerbegebiet im Großraum Stuttgart mit sehr guter Anbindung an die regionalen und überregionalen Verkehrsachsen. Über die Autobahn A14 sowie das umliegende Straßennetz sind sowohl die Stuttgarter Innenstadt als auch umliegende Wirtschaftsstandorte schnell erreichbar.
Das direkte Umfeld ist geprägt von gewerblichen Nutzungen und bietet damit optimale Voraussetzungen für logistiknahe und produktionsorientierte Unternehmen. Gleichzeitig gewährleisten nahegelegene Haltestellen des öffentlichen Nahverkehrs eine gute Erreichbarkeit für Mitarbeiter. Ergänzende Versorgungsangebote und gastronomische Einrichtungen im Umfeld runden die Standortqualität ab.
Flughafen 23 km | Fernbahnhof 9 km | Autobahn 2,50 km | U/S-Bahn 200 m | Zentrum 1,20 km | Bus 400 m | Einkaufsmöglichkeiten 900 m | Gaststätten 300 m
Die dargestellte Position der Immobilie ist nur eine ungefähre Angabe.










