EG-Einheit – direkt im Hinterhof mitten im Westen
70176 Stuttgart, West, Bürohaus zur Miete
Kontaktdaten
-
NameHerr Sven Gruber
-
FirmaIMMORAUM GmbH
-
AnschriftUhlandstraße 14
70182 Stuttgart -
E-Mail
-
Telefon
-
Telefon
-
Mobil
Objektdaten
-
Objekt-IDIR5636/E1
-
ObjekttypenBüro/Praxis, Bürohaus
-
Adresse70176 Stuttgart, West
-
EtageEG
-
Etagen im Haus4
-
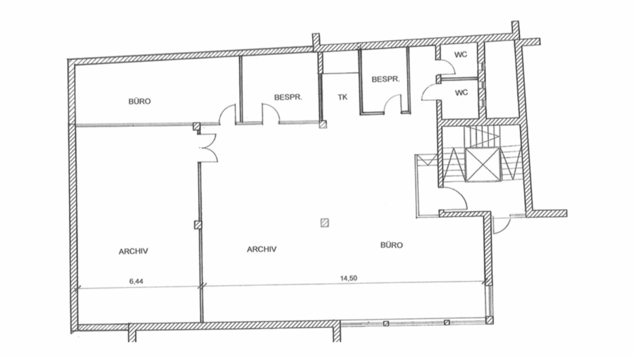
Bürofläche ca.269 m²
-
Büroteilfläche ca.269 m²
-
KücheEinbauküche
-
Baujahr1954
-
Zustandgepflegt
-
Miete pro m²18,00 EUR
Ausstattung / Merkmale
- ✓ DV-Verkabelung
- ✓ Einbauküche
Energieausweis
-
EnergieausweistypVerbrauchsausweis
-
Gültig bis29.04.2024
-
Baujahr lt. Energieausweis1954
-
Endenergieverbrauch Wärme114,00 kWh/(m²·a)
Objektbeschreibung
Beschreibung
Das Büro- und Geschäftshaus wurde im Jahre 1950 erbaut und befindet sich in einem gepflegten Zustand. Die vakanten Büroflächen im Gebäude verteilen sich auf vier Etagen und sind insgesamt ca. 1.029 m² groß. Die Flächen können ab ca. 234 m² geteilt werden, aber ebenso auch komplett angemietet werden.
Im Gebäude befindet sich eine Klimaanlage und die Flächen sind derzeit mit DV-Verkabelung und Parkettboden ausgestattet. Ebenso verfügen die Räumlichkeiten über einen außenliegenden Sonnenschutz, der manuell auf die jeweiligen Wettergegebenheiten einstellbar ist.
Am Gebäude selbst befindet sich nur ein Stellplatz, jedoch können in einer naheliegenden Parkgarage weitere Stellplätze angemietet werden.
Ausstattung
- teilbar ab 234 m²
- außenliegender Sonnenschutz
- Parkmöglichkeiten in der Nähe
- sehr gute ÖPNV-Anbindung
Sonstiges
Noch nicht das Richtige? Wir führen weitere Objekte im Großraum Stuttgart. Sprechen Sie mit unseren Beratern. Gemeinsam finden wir Ihr Wunschobjekt! Wir freuen uns auf Ihre Kontaktaufnahme!
Nach den §§ 16, 16 a EnEV ist der Eigentümer, Verkäufer, Vermieter, Verpächter und Leasinggeber bei der Vermarktung von Immobilien verpflichtet, den Energieausweis der Immobilie gemäß der gesetzlichen Vorgabe bei Besichtigungen auszuhändigen bzw. auszuhängen und bestimmte energetische Kennwerte aus dem Energieausweis in die Immobilieninserate und Exposés aufzunehmen. Dieser Nachweis wurde von uns bereits bei den Eigentümern angefordert und kann von Ihnen beim Besichtigungstermin eingesehen werden.
Lage
Das Büro- und Geschäftshaus liegt in zentraler Lage im Stuttgarter Westen. Nur wenige Gehminuten entfernt befindet sich die U-Bahnhaltestelle Rosenberg-/Seidenstraße. Von hier erreicht man den Hauptverkehrsknotenpunkt Stuttgarts, den Hauptbahnhof mit Anschluss an alle S-/ und U-Bahn-Linien der Stadt, bereits in kürzester Zeit. Die Autobahn A8 erreicht man in ca. 15 Min. und den internationalen Flughafen in ca. 20 Min. mit dem Auto.
Flughafen 15 km | Fernbahnhof 1,40 km | Autobahn 11,40 km | U/S-Bahn 350 m | Zentrum 1,60 km | Bus 400 m | Einkaufsmöglichkeiten 600 m | Gaststätten 100 m
70176 Stuttgart, West, Deutschland (auf Google Maps ansehen)












