Ein ganzes Haus für Ihr Unternehmen? hier ist dies möglich!
70178 Stuttgart, West, Bürohaus zur Miete
Kontaktdaten
-
NameHerr Sven Gruber
-
FirmaIMMORAUM GmbH
-
AnschriftUhlandstraße 14
70182 Stuttgart -
E-Mail
-
Telefon
-
Telefon
-
Mobil
Objektdaten
-
Objekt-IDIR557
-
ObjekttypenBüro/Praxis, Bürohaus
-
Adresse70178 Stuttgart, West
-
Etagen im Haus5
-
Wesentlicher EnergieträgerGas
-
Baujahr1951
-
Letzte Modernisierung1994
-
Zustandgepflegt
-
Mieterprovision (gewerblich)provisionsfrei
-
Nebenkosten3,50 EUR
-
Preisauf Anfrage
Ausstattung / Merkmale
- ✓ DV-Verkabelung
- ✓ Personenaufzug
- ✓ Teppichboden
Energieausweis
-
EnergieausweistypBedarfsausweis
-
Baujahr lt. Energieausweis1951
-
Wesentlicher EnergieträgerGas
-
Endenergiebedarf Strom15,40 kWh/(m²·a)
-
Endenergiebedarf Wärme146,80 kWh/(m²·a)
Objektbeschreibung
Beschreibung
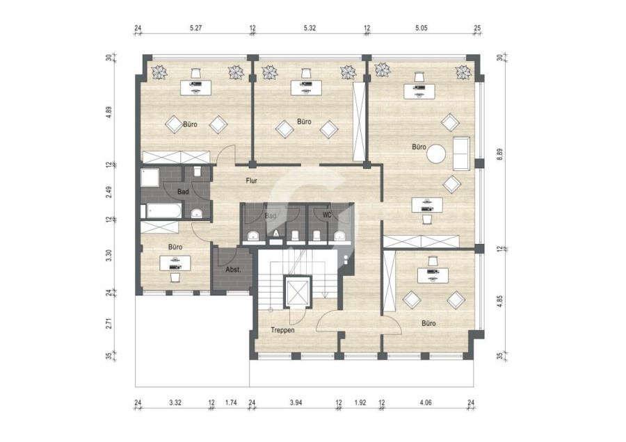
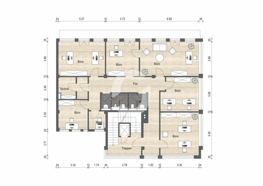
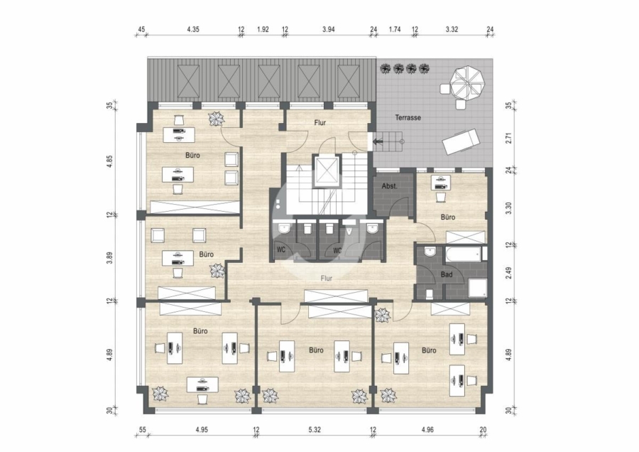
Erleben Sie flexible Büroflächen oder mieten Sie gleich ein ganzes Haus in einer der begehrtesten Lagen von S-West/Feuersee. Diese Immobilie bietet insgesamt ca. 800 m² moderne Büroflächen, verteilt auf vier Etagen, die auch einzeln angemietet werden können.
Objekt-Highlights: – Flexible Nutzung: Jede Etage ist separat anmietbar – ideal für Unternehmen, die maßgeschneiderte Flächen benötigen.
- Individuelle Anpassung: Umbaumaßnahmen sind nach Absprache und Kostenprüfung möglich, um Ihre individuellen Vorstellungen zu realisieren.
- Optimale Raumaufteilung: Dank der quadratischen Grundstruktur und wenigen tragenden Elemente lässt sich die Fläche unkompliziert an veränderte Bedürfnisse anpassen.
- Exklusives Highlight: Die oberste Etage besticht mit einem großzügigen Balkon, der nicht nur für entspannte Pausen sorgt, sondern auch eine beeindruckende Weitsicht bietet.
Ausstattung
weitere Ausstattungsmerkmale:
- Außenstellplätze
- Personenaufzug
- Sonnenschutz außen
- Lüftung
- Klimatisierung
Sonstiges
Nach den §§ 16, 16 a EnEV ist der Eigentümer, Verkäufer, Vermieter, Verpächter und Leasinggeber bei der Vermarktung von Immobilien verpflichtet, den Energieausweis der Immobilie gemäß der gesetzlichen Vorgabe bei Besichtigungen auszuhändigen bzw. auszuhängen und bestimmte energetische Kennwerte aus dem Energieausweis in die Immobilieninserate und Exposés aufzunehmen. Dieser Nachweis wurde von uns bereits bei den Eigentümern angefordert und kann von Ihnen beim Besichtigungstermin eingesehen werden.
Lage
Die Silberburgstraße 162 in Stuttgart-West liegt in einem lebhaften und gut erreichbaren Stadtteil, der durch seine zentrale Lage und gute Anbindung besticht. Öffentliche Verkehrsmittel, zahlreiche Geschäfte und Gastronomiebetriebe befinden sich in unmittelbarer Nähe. Die Umgebung bietet sowohl hohe Fußgängerfrequenz als auch bequeme Parkmöglichkeiten, was die Lage besonders attraktiv für gewerbliche Nutzung macht.
Flughafen 13,20 km | Fernbahnhof 120 m | Autobahn 10,50 km | U/S-Bahn 500 m | Zentrum 1,30 km | Bus 110 m | Einkaufsmöglichkeiten 270 m | Gaststätten 150 m
Die dargestellte Position der Immobilie ist nur eine ungefähre Angabe.














