Stadtbahnnahes Büro in Stuttgart-Wangen | 606 m² teilbar
70327 Stuttgart, Wangen, Bürohaus zur Miete
Kontaktdaten
-
NameHerr Sven Gruber
-
FirmaIMMORAUM GmbH
-
AnschriftUhlandstraße 14
70182 Stuttgart -
E-Mail
-
Telefon
-
Telefon
-
Mobil
Objektdaten
-
Objekt-IDIR248/G1/E2/Eh1
-
ObjekttypenBüro/Praxis, Bürohaus
-
Adresse70327 Stuttgart, Wangen
-
Etage1
-
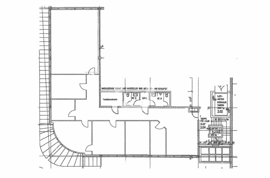
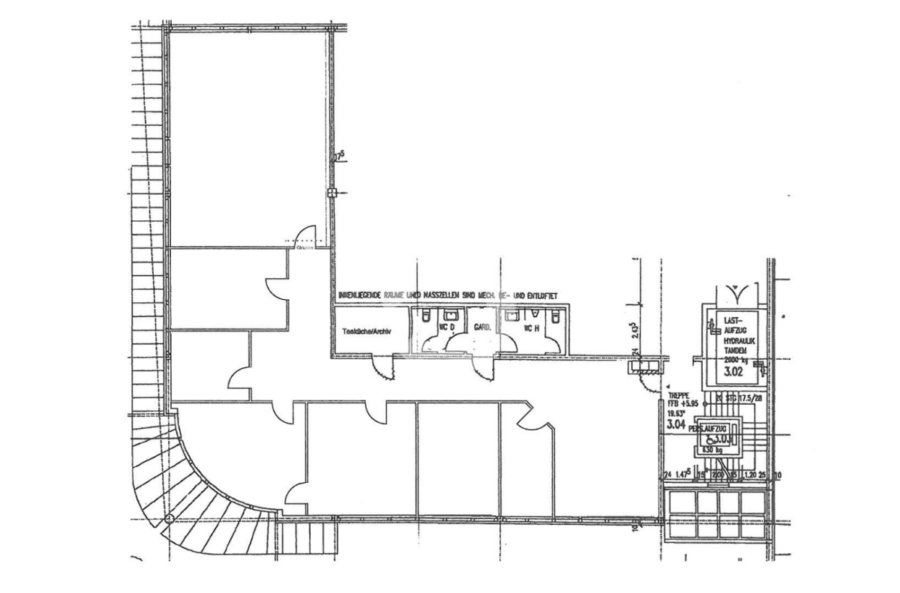
Bürofläche ca.303 m²
-
Büroteilfläche ca.303 m²
-
KücheTeeküche
-
Baujahr1994
-
Zustandgepflegt
-
Miete pro m²12,00 EUR
-
Nebenkosten2,50 EUR
Ausstattung / Merkmale
- ✓ Personenaufzug
- ✓ Teeküche
- ✓ Teppichboden
Objektbeschreibung
Beschreibung
Zur Vermietung kommt hier eine Büroeinheit mit einer Fläche von ca. 303 m² in einem markanten Gebäude an der Einfahrt zum Gewerbegebiet "Kesselstraße". Die im 1. OG des Räume sind bereits mit einer Beleuchtungsanlage sowie EDV-Verkabelung ausgestattet. Die großen Fensterflächen verfügen über außenliegende, elektrische Jalousien, der Boden ist mit einem hochwertigen Teppichboden ausgelegt. Darüber hinaus verfügt die Fläche über getrennte, moderne Sanitäranlagen sowie eine Teeküche. Der Grundriss ist variabel gestaltbar und lässt sich problemlos an die Bedürfnisse des neuen Mieters anpassen.
Ausstattung
- Personenaufzug
- Teilklimatisierung
- Elektrische Außenjalousien
- Teppichboden
- Teeküche
- TG-Stellplätze
Sonstiges
Noch nicht das Richtige? Wir führen weitere Objekte im Großraum Stuttgart. Sprechen Sie mit unseren Beratern. Gemeinsam finden wir Ihr Wunschobjekt! Wir freuen uns auf Ihre Kontaktaufnahme!
Am 01. Mai 2014 ist die EnEV 2014 in Kraft getreten. Nach den §§ 16, 16 a EnEV ist der Eigentümer, Verkäufer, Vermieter, Verpächter und Leasinggeber bei der Vermarktung von Immobilien verpflichtet, den Energieausweis der Immobilie gemäß der gesetzlichen Vorgabe bei Besichtigungen auszuhändigen bzw. auszuhängen und bestimmte energetische Kennwerte aus dem Energieausweis in die Immobilieninserate und Exposés aufzunehmen. Dieser Nachweis wurde von uns bereits bei den Eigentümern angefordert und kann von Ihnen eingesehen werden.
Lage
Das Bürogebäude befindet sich in Stuttgart-Wangen, ca. 100 m von der Otto-Hirsch-Brücke entfernt. In ca. 10 Autominuten erreichen Sie das Zentrum von Stuttgart. Die U-Bahn befindet sich direkt vor dem Gebäude. In direkter Umgebung befinden sich namenhafte internationale und lokale Unternehmen. Geschäfte des täglichen Bedarfs sind fußläufig schnell zu erreichen. Über die B10 ist der Standort sehr gut an Stuttgart und Esslingen sowie die Autobahn angeschlossen.
Flughafen 14 km | Fernbahnhof 1,80 km | Autobahn 14 km | U/S-Bahn 300 m | Zentrum 9 km | Bus 1,30 km | Einkaufsmöglichkeiten 100 m | Gaststätten 100 m
70327 Stuttgart, Wangen, Deutschland (auf Google Maps ansehen)











