Bürofläche in Wangen ab sofort verfügbar – 150 und 220 m²
70327 Stuttgart, Wangen, Bürohaus zur Miete
Kontaktdaten
-
NameHerr Raphael Jung
-
FirmaIMMORAUM GmbH
-
AnschriftUhlandstraße 14
70182 Stuttgart -
E-Mail
-
Telefon
-
Telefon
-
Mobil
Objektdaten
-
Objekt-IDIRx2515/G1/E2/Eh1
-
ObjekttypenBüro/Praxis, Bürohaus
-
Adresse70327 Stuttgart, Wangen
-
Bürofläche ca.220 m²
-
Büroteilfläche ca.220 m²
-
KücheTeeküche
-
Wesentlicher EnergieträgerFernwärme
-
Zustandgepflegt
-
Mieterprovision (gewerblich)provisionsfrei
-
Miete pro m²10,00 EUR
-
Nebenkosten1,50 EUR
Ausstattung / Merkmale
- ✓ DV-Verkabelung
- ✓ Teeküche
Energieausweis
-
EnergieausweistypVerbrauchsausweis
-
Wesentlicher EnergieträgerFernwärme
-
Endenergieverbrauch Strom31,00 kWh/(m²·a)
-
Endenergieverbrauch Wärme60,00 kWh/(m²·a)
Objektbeschreibung
Beschreibung
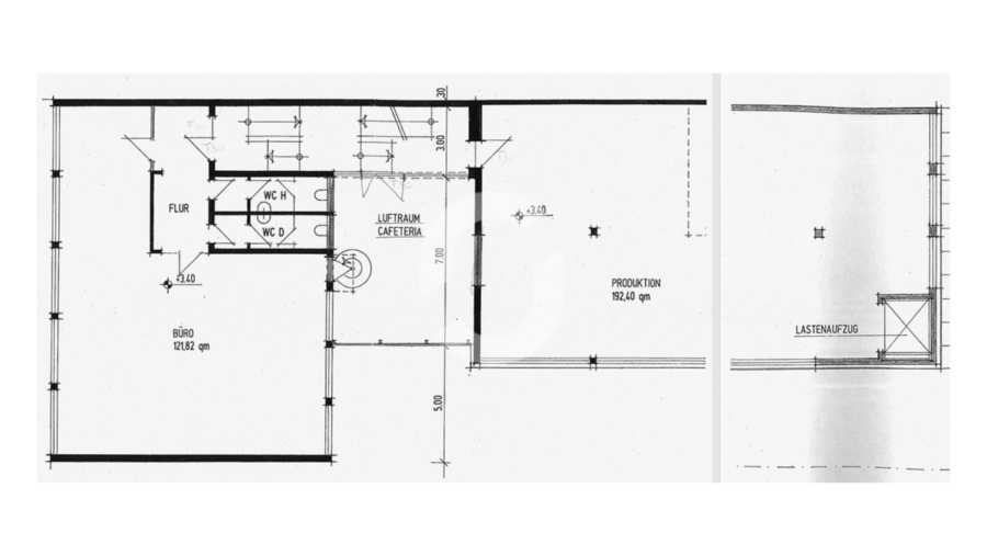
Am etablierten Gewerbestandort Stuttgart-Wangen stehen ca. 370 m² Bürofläche zur Verfügung, teilbar ab ca. 150 m². Die Flächen sind kurzfristig beziehbar und bieten eine moderne Ausstattung mit Parkettboden, außenliegendem Sonnenschutz, Pendelleuchten und Brüstungskanälen. Dank der zentralen Lage mit sehr guter Anbindung an B10/B14, ÖPNV sowie Flughafen und Messe ist das Objekt sowohl für Mitarbeiter als auch Kunden optimal erreichbar. Gastronomie- und Versorgungsangebote befinden sich in direkter Umgebung.
Sonstiges
Noch nicht das Richtige? Wir führen weitere Objekte im Großraum Stuttgart. Sprechen Sie mit unseren Beratern. Gemeinsam finden wir Ihr Wunschobjekt! Wir freuen uns auf Ihre Kontaktaufnahme!
Am 01. Mai 2014 ist die EnEV 2014 in Kraft getreten. Nach den §§ 16, 16 a EnEV ist der Eigentümer, Verkäufer, Vermieter, Verpächter und Leasinggeber bei der Vermarktung von Immobilien verpflichtet, den Energieausweis der Immobilie gemäß der gesetzlichen Vorgabe bei Besichtigungen auszuhändigen bzw. auszuhängen und bestimmte energetische Kennwerte aus dem Energieausweis in die Immobilieninserate und Exposés aufzunehmen. Dieser Nachweis wurde von uns bereits bei den Eigentümern angefordert und kann von Ihnen eingesehen werden.
Lage
Die Hedelfinger Straße 103 in Stuttgart-Wangen befindet sich in einer gut angebundenen Lage im Osten der Stadt, direkt am Neckarufer zwischen den Stadtteilen Wangen und Untertürkheim. Durch die Nähe zur B10 und zur Autobahn A8 ist die Anbindung für den Autoverkehr hervorragend, und auch die Innenstadt ist schnell erreichbar. Der öffentliche Nahverkehr ist sehr gut ausgebaut: Bus-, U-Bahn- und S-Bahn-Haltestellen liegen in kurzer Gehdistanz und bieten schnelle Verbindungen in die Stuttgarter City, nach Bad Cannstatt sowie zum Flughafen.
Die Infrastruktur im direkten Umfeld ist vielfältig: Supermärkte, Bäckereien, Restaurants und weitere Dienstleister sind fußläufig erreichbar. Das Gebiet ist geprägt von einer Mischung aus Wohnbebauung, Gewerbe und Industrie, was die Lage sowohl für Bewohner als auch für Unternehmen interessant macht. Zudem bietet die Nähe zum Neckar mit seinen Grünflächen und Radwegen einen hohen Freizeitwert. Insgesamt verbindet der Standort eine zentrale Stadtnähe mit guter Verkehrsanbindung und praktischer Infrastruktur.
Flughafen 17,50 km | Fernbahnhof 2,50 km | Autobahn 2,50 km | U/S-Bahn 600 m | Zentrum 5,50 km | Bus 200 m | Einkaufsmöglichkeiten 400 m | Gaststätten 400 m
70327 Stuttgart, Wangen, Deutschland (auf Google Maps ansehen)










