Helle Büroflächen im Gewerbegebiet Wallgraben
70563 Stuttgart, Möhringen, Bürohaus zur Miete
Kontaktdaten
-
NameHerr Sven Gruber
-
FirmaIMMORAUM GmbH
-
AnschriftUhlandstraße 14
70182 Stuttgart -
E-Mail
-
Telefon
-
Telefon
-
Mobil
Objektdaten
-
Objekt-IDIR2833/G1/E1/Eh1
-
ObjekttypenBüro/Praxis, Bürohaus
-
Adresse70563 Stuttgart, Möhringen
-
EtageEG
-
Bürofläche ca.710 m²
-
Büroteilfläche ca.710 m²
-
HeizungsartZentralheizung
-
Zustandvollsaniert
-
Stellplätze gesamt11
-
Mieterprovision (gewerblich)provisionsfrei
-
Miete pro m²16,00 EUR
-
Nebenkosten3,70 EUR
Ausstattung / Merkmale
- ✓ Lastenaufzug
- ✓ Personenaufzug
- ✓ Teppichboden
- ✓ Tiefgarage
Energieausweis
-
EnergieausweistypVerbrauchsausweis
-
Endenergieverbrauch Strom93,70 kWh/(m²·a)
-
Endenergieverbrauch Wärme140,20 kWh/(m²·a)
Objektbeschreibung
Beschreibung
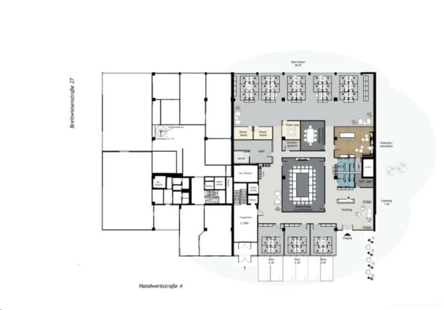
Die vakanten Büro- und Gewerbeflächen befinden sich in der Handwerkstraße 4/ Breitwiesenstraße 27 in Stuttgart-Möhringen. Eine der Vakanzen erstreckt sich mit ca. 762 m² über das 2. Obergeschoss. Eine Weitere verteilt sich mit rd. 902 m² auf das 3. Obergeschoss.
Ein kleines Highlight bilden die Dachterrassen, die zum Arbeiten unter freiem Himmel oder zum Verweilen in den Pausen einladen. Dank dem außenliegenden Sonnenschutz können die Räume bei Bedarf abgedunkelt werden.
Eingerichtete Teeküchen sowie eine teilweise vorhandene CAT-7 Verkabelung gehören zur weiteren Ausstattung der Flächen.
In der hauseigenen Tiefgarage als auch im Außenbereich stehen Stellplätze zur Verfügung.
Sonstiges
Noch nicht das Richtige? Wir führen weitere Objekte im Großraum Stuttgart. Sprechen Sie mit unseren Beratern. Gemeinsam finden wir Ihr Wunschobjekt! Wir freuen uns auf Ihre Kontaktaufnahme!
Nach den §§ 16, 16 a EnEV ist der Eigentümer, Verkäufer, Vermieter, Verpächter und Leasinggeber bei der Vermarktung von Immobilien verpflichtet, den Energieausweis der Immobilie gemäß der gesetzlichen Vorgabe bei Besichtigungen auszuhändigen bzw. auszuhängen und bestimmte energetische Kennwerte aus dem Energieausweis in die Immobilieninserate und Exposés aufzunehmen. Dieser Nachweis wurde von uns bereits bei den Eigentümern angefordert und kann von Ihnen beim Besichtigungstermin eingesehen werden.
Lage
In direkter Nähe zum Objekt liegt die Bushaltestelle der Linie 80, mit hoher Taktfrequenz zum Bahnhof Vaihingen sowie zur U-Bahn Haltestelle Wallgraben. Mit den S-Bahnen S2 und S3 kann der Stuttgarter Flughafen schnell erreicht werden. Der Hauptbahnhof ist durch die S-Bahnen S1, S2 und S3 in rund 15 Fahrminuten erreichbar. In der direkten Nachbarschaft zum Objekt befinden sich die Hauptsitze der DEKRA und Lapp-Kabel.
Flughafen 7 km | Fernbahnhof 8,40 km | Autobahn 1,90 km | U/S-Bahn 1 km | Zentrum 7,30 km | Bus 1 km | Einkaufsmöglichkeiten 2 km | Gaststätten 1,40 km
Die dargestellte Position der Immobilie ist nur eine ungefähre Angabe.









