Bürogebäude in S-Mitte, Heusteigviertel, sehr zentral aber ruhig, Loftcharakter
70180 Stuttgart, Mitte, Bürohaus zur Miete
Kontaktdaten
-
NameHerr Sven Gruber
-
FirmaIMMORAUM GmbH
-
AnschriftUhlandstraße 14
70182 Stuttgart -
E-Mail
-
Telefon
-
Telefon
-
Mobil
Objektdaten
-
Objekt-IDIR8180
-
ObjekttypenBüro/Praxis, Bürohaus
-
Adresse70180 Stuttgart, Mitte
-
Etagen im Haus3
-
Bürofläche ca.1.943 m²
-
Lagerfläche ca.153 m²
-
Büroteilfläche ca.440 m²
-
KücheTeeküche
-
HeizungsartZentralheizung
-
Zustandvollsaniert
-
Stellplätze gesamt12
-
Mieterprovision (gewerblich)provisionsfrei
-
Miete pro m²15,00 EUR
Ausstattung / Merkmale
- ✓ Außenstellplatz
- ✓ Klimatisiert
- ✓ Laminatboden
- ✓ Lastenaufzug
- ✓ Personenaufzug
- ✓ Teeküche
Objektbeschreibung
Beschreibung
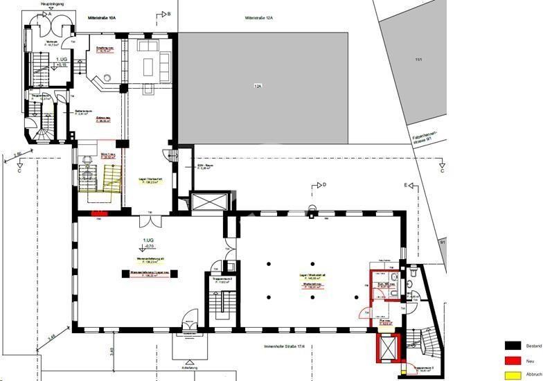
Das sanierte Kreativgebäude befindet sich gut gelegen direkt im Stuttgarter Heusteigviertel. Auf insgesamt 4 Geschossen bietet sich die seltene Gelegenheit der Anmietung eines gesamten Loftgebäudes mit insgesamt ca. 1.943 m² Bürofläche zzgl. Lagerfläche. Die Geschosse können jedoch ebenfalls separat angemietet werden und verfügen jeweils über einen separaten Eingang. Aufgrund der Grundrissstruktur eignet sich das Gebäude für Agenturen und weitere Kreativunternehmen. Um das Gebäude herum befinden sich ca. 12 Stellplätze sowie weitere Abstellmöglichkeiten für Fahrräder. Die hervorragende Anbindung an den ÖPNV, durch die in der Nähe des Gebäudes befindliche U-Bahn-Haltestelle "Österreichischer Platz", stellt eine ideale Mischung der Erreichbarkeit dar.
Die Flächen verteilen sich auf ein Lagergeschoss, sowie vier mögliche Bürogeschosse und ein Wohngeschoss, welche alle über einen Aufzug miteinander verbunden sind. Die einzelnen Büroetagen bestechen durch große Fensterflächen. Die Lagerflächen können mit einem LKW mit bis zu 7,5t über den Hinterhof angeliefert werden.
Flächen:
- UG – 493 m²
- EG – 493 m²
- 1. OG – 517 m²
- 2. OG – 440 m²
Ausstattung
- hochwertiger Laminat in den Obergeschossen
- Barrierefrei
- Betonboden im Souterrain
- Stellplätze im Hof
- außenliegender Personenaufzug
- innenliegender Lastenaufzug verbindet alle Etagen
- Gasheizung
- vollklimatisierte Räumlichkeiten
Sonstiges
Noch nicht das Richtige? Wir führen weitere Objekte im Großraum Stuttgart. Sprechen Sie mit unseren Beratern. Gemeinsam finden wir Ihr Wunschobjekt! Wir freuen uns auf Ihre Kontaktaufnahme!
Nach den §§ 16, 16 a EnEV ist der Eigentümer, Verkäufer, Vermieter, Verpächter und Leasinggeber bei der Vermarktung von Immobilien verpflichtet, den Energieausweis der Immobilie gemäß der gesetzlichen Vorgabe bei Besichtigungen auszuhändigen bzw. auszuhängen und bestimmte energetische Kennwerte aus dem Energieausweis in die Immobilieninserate und Exposés aufzunehmen. Dieser Nachweis wurde von uns bereits bei den Eigentümern angefordert und kann von Ihnen beim Besichtigungstermin eingesehen werden.
Lage
Das Bürogebäude befindet sich am Österreichischen Platz in Stuttgart und somit in bester Innenstadtlage. Mit dem Stuttgarter City Ring vor der Tür besteht eine sehr gute Verbindung zu den umliegenden Bundesstraße und Autobahnen. Die U-Bahnhaltestelle "Österreichischer Platz" sowie die Bushaltestelle Falbenhennenstraße befinden sich in unmittelbarer Nähe des Gebäude, sodass auch eine hervorragende Anbindung an den ÖPNV besteht. Von hier aus gelangt man im Minutentakt zu den Knotenpunkten der Stadt. Für ein ausreichendes gastronomisches Angebot sorgt das nahe gelegene "Heusteigviertel" mit seinem vielfältigen Restaurants, Cafés und Bars. Zudem befindet sich das innerstädtische Einkaufscenter "das Gerber" ebenfalls nur wenige Minuten Fußweg entfernt, das neben dem Einzelhandelsangebot auch einen Food-Court und zwei Supermärkte beinhaltet.
Flughafen 12 km | Fernbahnhof 6 km | Autobahn 9,40 km | U/S-Bahn 700 m | Zentrum 700 m | Bus 100 m | Einkaufsmöglichkeiten 700 m | Gaststätten 100 m
70180 Stuttgart, Mitte, Deutschland (auf Google Maps ansehen)

















