Exklusive Bürofläche in der Innenstadt
70174 Stuttgart, Mitte, Bürohaus zur Miete
Kontaktdaten
-
NameHerr Raphael Jung
-
FirmaIMMORAUM GmbH
-
AnschriftUhlandstraße 14
70182 Stuttgart -
E-Mail
-
Telefon
-
Telefon
-
Mobil
Objektdaten
-
Objekt-IDIR2980/G1/E6/Eh1
-
ObjekttypenBüro/Praxis, Bürohaus
-
Adresse70174 Stuttgart, Mitte
-
Etagen im Haus6
-
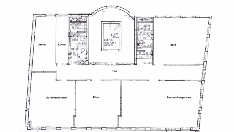
Bürofläche ca.162 m²
-
Büroteilfläche ca.162 m²
-
KücheTeeküche
-
Wesentlicher EnergieträgerGas
-
Baujahr1995
-
Zustandgepflegt
-
Ausstattunggehoben
-
Mieterprovision (gewerblich)provisionsfrei
-
Miete pro m²20,00 EUR
-
Nebenkosten4,00 EUR
Ausstattung / Merkmale
- ✓ DV-Verkabelung
- ✓ Laminatboden
- ✓ Parkettboden
- ✓ Personenaufzug
- ✓ Teeküche
Energieausweis
-
EnergieausweistypVerbrauchsausweis
-
Baujahr1995
-
Wesentlicher EnergieträgerGas
-
Endenergieverbrauch Strom4,00 kWh/(m²·a)
-
Endenergieverbrauch Wärme90,00 kWh/(m²·a)
Objektbeschreibung
Beschreibung
Die hier angebotene Bürofläche befindet unweit der Theodor-Heuss-Straße und liegt im Obergeschoss eines sehr gepflegten Geschäftshauses. Die Fläche besticht durch eine große Fensterfront sowie eine gute Sichtbarkeit durch die Ecklage. Die Fläche auf die Bedürfnisse des Mieters angepasst werden.
Ausstattung
- Hohlraumboden
- Teeküche
- 2 Sanitärbereiche
- Aufzug
- Laminatboden
- abgehängte Decken
- innenliegender Sonnenschutz
Sonstiges
Noch nicht das Richtige? Wir führen weitere Objekte im Großraum Stuttgart. Sprechen Sie mit unseren Beratern. Gemeinsam finden wir Ihr Wunschobjekt! Wir freuen uns auf Ihre Kontaktaufnahme!
Am 01. Mai 2014 ist die EnEV 2014 in Kraft getreten. Nach den §§ 16, 16 a EnEV ist der Eigentümer, Verkäufer, Vermieter, Verpächter und Leasinggeber bei der Vermarktung von Immobilien verpflichtet, den Energieausweis der Immobilie gemäß der gesetzlichen Vorgabe bei Besichtigungen auszuhändigen bzw. auszuhängen und bestimmte energetische Kennwerte aus dem Energieausweis in die Immobilieninserate und Exposés aufzunehmen. Dieser Nachweis wurde von uns bereits bei den Eigentümern angefordert und kann von Ihnen beim Besichtigungstermin eingesehen werden.
Lage
Die Bürofläche befindet sich in der Nähe der Theodor-Heuss-Straße, diese ist einfach und schnell zu Fuß zu erreichen. Im direkten Umfeld befinden sich eine Vielzahl an Büromietern, durch diese wird die Straße gut frequentiert und durch die Ecklage ist die Fläche auch für Autofahrer gut sichtbar.
Flughafen 14,20 km | Fernbahnhof 450 m | Autobahn 11 km | U/S-Bahn 350 m | Zentrum 500 m | Bus 290 m | Einkaufsmöglichkeiten 260 m | Gaststätten 100 m
70174 Stuttgart, Mitte, Deutschland (auf Google Maps ansehen)














