Großzügiges Büro in zentraler Lage von Stuttgart
70182 Stuttgart, Mitte, Bürohaus zur Miete
Kontaktdaten
-
NameHerr Raphael Jung
-
FirmaIMMORAUM GmbH
-
AnschriftUhlandstraße 14
70182 Stuttgart -
E-Mail
-
Telefon
-
Telefon
-
Mobil
Objektdaten
-
Objekt-IDIR4848_1/G1/E1/Eh1
-
ObjekttypenBüro/Praxis, Bürohaus
-
Adresse70182 Stuttgart, Mitte
-
EtageEG
-
Bürofläche ca.250 m²
-
Büroteilfläche ca.250 m²
-
KücheTeeküche
-
Zustandgepflegt
-
AusstattungStandard
-
Stellplätze gesamt4
-
Mieterprovision (gewerblich)provisionsfrei
-
Miete pro m²8,70 EUR
-
Nebenkosten1,70 EUR
Ausstattung / Merkmale
- ✓ Teeküche
- ✓ Tiefgarage
Objektbeschreibung
Beschreibung
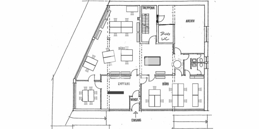
Die vakante Fläche befindet sich in einem Hinterhofgebäude in absolut ruhiger Lage. Über einen eigenen Eingang gelangen Sie in den Empfangsbereich, der Platz für eine Sitzgelegenheit und eine Empfangstheke bietet. Von hier aus haben Sie Zutritt zu zwei Großraumbüros und einem kleineren Raum, der als Besprechungsraum genutzt wird.
Die Teeküche befindet sich in einem der Großraumbüros und ist offen gestaltet. Zusätzlich bietet die Einheit einen großzügigen Lagerraum, in dem auch der Serverschrank steht. Eine EDV-Verkabelung (Cat 7) ist vorhanden und verläuft über Fensterbankkabelkanäle.
Zwei neuwertige WC-Räume und vier Stellplätze direkt am Gebäude, die optional zur Anmietung bereit stehen, komplettieren das Angebot.
Ausstattung
- 2 Stellplätze
- Eigener Zugang
- Vorhandene Cat7-Verkabelung
- Vorhandene Teeküche
- Moderne WC-Räume
- Loftcharakter
Sonstiges
Noch nicht das Richtige? Wir führen weitere Objekte im Großraum Stuttgart. Sprechen Sie mit unseren Beratern. Gemeinsam finden wir Ihr Wunschobjekt! Wir freuen uns auf Ihre Kontaktaufnahme!
Nach den §§ 16, 16 a EnEV ist der Eigentümer, Verkäufer, Vermieter, Verpächter und Leasinggeber bei der Vermarktung von Immobilien verpflichtet, den Energieausweis der Immobilie gemäß der gesetzlichen Vorgabe bei Besichtigungen auszuhändigen bzw. auszuhängen und bestimmte energetische Kennwerte aus dem Energieausweis in die Immobilieninserate und Exposés aufzunehmen. Dieser Nachweis wurde von uns bereits bei den Eigentümern angefordert und kann von Ihnen beim Besichtigungstermin eingesehen werden.
Das Angebot ist für den Mieter provisionspflichtig. Im Falle der Anmietung hat Immoraum einen Anspruch gegenüber dem Mieter auf Zahlung einer Mieterprovision in Höhe von 3 Monatsmieten zuzüglich gesetzlicher Mehrwertsteuer von derzeit 19 %.
Lage
Das Objekt liegt in zentraler Lage von Stuttgart-Mitte, unweit dem Charlottenplatz und dem Eugensplatz und bietet somit eine gute Infrastruktur. In unmittelbarer Nachbarschaft befindet sich hauptsächlich Wohnbebauung sowie einige Verwaltungs- und Bürohäuser in denen sich viele (kreative) Unternehmen, Rechts- und Steuerberatergesellschaften angesiedelt haben. Die nächstgelegenen ÖPNV-Anbindungen sind der Charlottenplatz und der Eugensplatz. Hier verkehren sämtliche Stadtbahnen und Busse. Zur Stadtmitte fahren Sie von hier aus etwa 1 Min., zum Hauptbahnhof 2 Min. Den Flughafen und das Messegelände erreichen Sie in ca. 25 Min.
Flughafen 13 km | Fernbahnhof 2 km | Autobahn 10 km | U/S-Bahn 500 m | Zentrum 1 km | Bus 1 km | Einkaufsmöglichkeiten 400 m | Gaststätten 500 m
70182 Stuttgart, Mitte, Deutschland (auf Google Maps ansehen)









