Exklusive Büroflächen im Königsbau – ab sofort verfügbar (317 m²)
70173 Stuttgart, Mitte, Bürohaus zur Miete
Kontaktdaten
-
NameHerr Raphael Jung
-
FirmaIMMORAUM GmbH
-
AnschriftUhlandstraße 14
70182 Stuttgart -
E-Mail
-
Telefon
-
Telefon
-
Mobil
Objektdaten
-
Objekt-IDIR2083/G7/E3/Eh1
-
ObjekttypenBüro/Praxis, Bürohaus
-
Adresse70173 Stuttgart, Mitte
-
Bürofläche ca.317 m²
-
Büroteilfläche ca.317 m²
-
Baujahr2006
-
Zustandgepflegt
-
Mieterprovision (gewerblich)provisionsfrei
-
Miete pro m²8,50 EUR
-
Nebenkosten4,00 EUR
Energieausweis
-
EnergieausweistypBedarfsausweis
-
Gültig bis23.11.2024
-
Baujahr2006
-
Endenergiebedarf105,00 kWh/(m²·a)
-
Endenergiebedarf Strom26,00 kWh/(m²·a)
-
Endenergiebedarf Wärme77,00 kWh/(m²·a)
Objektbeschreibung
Beschreibung
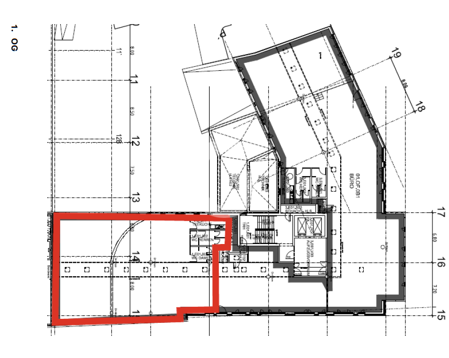
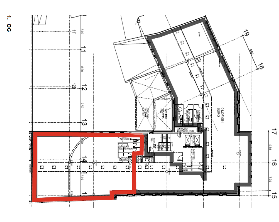
Helle Büroflächen mit einem funktionalen Grundriss. Es können bis zu ca. 32 Arbeitsplätze und ein Besprechungsraum untergebracht werden.
Die Büroflächen sind sehr hochwertig ausgebaut und durch die bodentiefen Fenster sehr hell. Bodentanks mit EDV-Verkabelung, eine Glasfaseranbindung, Einbauküche und helle, gepflegte Sanitärräume.
Die Fläche wird untervermietet. Die Laufzeit beträgt zunächst ca. 2 Jahre. Eine Verlängerung darüber hinaus ist nicht ausgeschlossen und muss mit dem Hauptmieter abgestimmt werden. Dadurch bietet sich eine volle Flexibilität.
Ausstattung
Verkabelung: CAT 7
Bodenbelag: Teppichboden
Bodenart: Hohlraumboden
Zugangskontrolle: vorhanden
Sonnenschutz: Außen- und Innenliegend
Sonstiges
Noch nicht das Richtige? Wir führen weitere Objekte im Großraum Stuttgart. Sprechen Sie mit unseren Beratern. Gemeinsam finden wir Ihr Wunschobjekt! Wir freuen uns auf Ihre Kontaktaufnahme!
Nach den §§ 16, 16 a EnEV ist der Eigentümer, Verkäufer, Vermieter, Verpächter und Leasinggeber bei der Vermarktung von Immobilien verpflichtet, den Energieausweis der Immobilie gemäß der gesetzlichen Vorgabe bei Besichtigungen auszuhändigen bzw. auszuhängen und bestimmte energetische Kennwerte aus dem Energieausweis in die Immobilieninserate und Exposés aufzunehmen. Dieser Nachweis wurde von uns bereits bei den Eigentümern angefordert und kann von Ihnen beim Besichtigungstermin eingesehen werden.
Lage
Die Königsbau Passagen liegen in der Mitte der Königstraße. Von dort aus erreicht man zahlreiche Geschäfte, Restaurants und Bars. Auch eine U-Bahn-Station ist direkt vor der Tür. Den Bahnhof erreicht man zu Fuß in nur wenigen Minuten. Bis zur Bundesstraße B10 ist es auch nur ein kurzes Stück.
Flughafen 13,90 km | Fernbahnhof 550 m | Autobahn 10 km | U/S-Bahn 100 m | Zentrum 100 m | Bus 230 m | Einkaufsmöglichkeiten 200 m | Gaststätten 300 m
70173 Stuttgart, Mitte, Deutschland (auf Google Maps ansehen)













