Bürofläche am Rotebühlplatz
70173 Stuttgart, Mitte, Bürohaus zur Miete
Kontaktdaten
-
NameHerr Sven Gruber
-
FirmaIMMORAUM GmbH
-
AnschriftUhlandstraße 14
70182 Stuttgart -
E-Mail
-
Telefon
-
Telefon
-
Mobil
Objektdaten
-
Objekt-IDIR4630/G1/E2/Eh2
-
ObjekttypenBüro/Praxis, Bürohaus
-
Adresse70173 Stuttgart, Mitte
-
Etage1
-
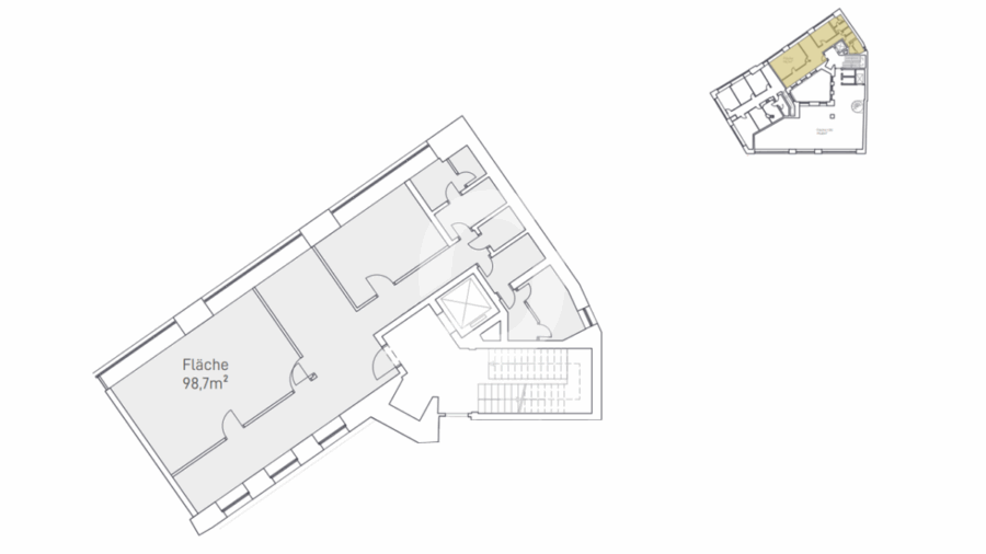
Bürofläche ca.98,70 m²
-
Büroteilfläche ca.98,70 m²
-
KücheTeeküche
-
Zustandgepflegt
-
Miete pro m²22,00 EUR
-
Nebenkosten4,00 EUR
Ausstattung / Merkmale
- ✓ Personenaufzug
- ✓ Teeküche
Objektbeschreibung
Beschreibung
Die Bürofläche in der Königstraße befindet sich in absoluter 1A-Lage direkt in der Stuttgarter Fußgängerzone. Große Schaufensterfronten bieten optimale Sichtbarkeit und hohe Frequenz durch Laufkundschaft. Die Fläche eignet sich ideal für Einzelhandel oder Dienstleistungen und überzeugt durch beste Anbindung, urbanes Umfeld und repräsentative Adresse.
Sonstiges
Noch nicht das Richtige? Wir führen weitere Objekte im Großraum Stuttgart. Sprechen Sie mit unseren Beratern. Gemeinsam finden wir Ihr Wunschobjekt! Wir freuen uns auf Ihre Kontaktaufnahme!
Nach den §§ 16, 16 a EnEV ist der Eigentümer, Verkäufer, Vermieter, Verpächter und Leasinggeber bei der Vermarktung von Immobilien verpflichtet, den Energieausweis der Immobilie gemäß der gesetzlichen Vorgabe bei Besichtigungen auszuhändigen bzw. auszuhängen und bestimmte energetische Kennwerte aus dem Energieausweis in die Immobilieninserate und Exposés aufzunehmen. Dieser Nachweis wurde von uns bereits bei den Eigentümern angefordert und kann von Ihnen beim Besichtigungstermin eingesehen werden.
Lage
Stuttgart zählt zu den führenden Wirtschaftsmetropolen Deutschlands und ist bekannt für seine Innovationskraft, hohe Lebensqualität und zentrale Lage in Süddeutschland. Die hervorragende Anbindung an Autobahnen, den Hauptbahnhof und den Flughafen macht Stuttgart zu einem attraktiven Standort für nationale und internationale Unternehmen.
Flughafen 13,80 km | Fernbahnhof 2,30 km | Autobahn 10,20 km | U/S-Bahn 100 m | Zentrum 300 m | Bus 100 m | Einkaufsmöglichkeiten 100 m | Gaststätten 200 m
70173 Stuttgart, Mitte, Deutschland (auf Google Maps ansehen)










