Moderne Büroflächen Citylage – vielseitig nutzbar mit Stellplätzen
70174 Stuttgart, Mitte, Bürohaus zur Miete
Kontaktdaten
-
NameHerr Maximilian Unterreiner
-
FirmaIMMORAUM GmbH
-
AnschriftUhlandstraße 14
70182 Stuttgart -
Telefon
-
Telefon
Objektdaten
-
Objekt-IDIR456/G1/E3/Eh2
-
ObjekttypenBüro/Praxis, Bürohaus
-
Adresse70174 Stuttgart, Mitte
-
Etage4
-
Etagen im Haus7
-
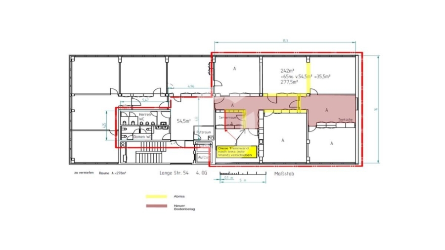
Bürofläche ca.278 m²
-
Büroteilfläche ca.278 m²
-
BaujahrAuf Anfrage
-
Zustandgepflegt
-
Mieterprovision (gewerblich)provisionsfrei
-
Miete pro m²14,00 EUR
-
Nebenkosten2,50 EUR
Ausstattung / Merkmale
- ✓ Personenaufzug
- ✓ Teppichboden
Objektbeschreibung
Beschreibung
Dieses funktionale Bürogebäude, mit rechteckigem Zuschnitt befindet sich in gefragter Lage unweit dem Zentrum und der Liederhalle. Das Gebäude verfügt über einen mittig gelegenen Erschließungskern mit 2 Personenaufzügen und einem großzügigen Treppenaufgang. Im Untergeschoss des Gebäudes befindet sich eine Tiefgarage mit separat anmietbaren Stellplätzen.
Die Fläche befindet sich im 4. Obergeschoss des Gebäudes und erstreckt sich über ca. 278 Quadratmeter. Aufgrund des flexiblen Grundrisses ist diese Einheit vielseitig nutzbar und kann optimal auf Ihre Bedürfnisse zugeschnitten werden. Bei den Bildern dieser Anzeige handelt es sich um Beispielbilder aus einer anderen Fläche in diesem Gebäude. Der Ausbau der Fläche erfolgt in Absprache mit dem Mieter.
Ausstattung
- Fußbodenart: Laminat
- Spiegelrasterleuchten
- Wärmeversorgung: Fernwärme
- außenliegender Sonnenschutz
- getrennte sanitäre Anlagen
- Personenaufzug
- 2 Teeküchen
- Glasfaseranschluss
- doppelverglaste Fensterelemente
- 3 TG-Stellplätze vorhanden: auf Anfrage
- 2 Außenstellplätze vorhanden: auf Anfrage
- teilbar ab ca. 200 m²
Sonstiges
Noch nicht das Richtige? Wir führen weitere Objekte im Großraum Stuttgart. Sprechen Sie mit unseren Beratern. Gemeinsam finden wir Ihr Wunschobjekt! Wir freuen uns auf Ihre Kontaktaufnahme!
Nach den §§ 16, 16 a EnEV ist der Eigentümer, Verkäufer, Vermieter, Verpächter und Leasinggeber bei der Vermarktung von Immobilien verpflichtet, den Energieausweis der Immobilie gemäß der gesetzlichen Vorgabe bei Besichtigungen auszuhändigen bzw. auszuhängen und bestimmte energetische Kennwerte aus dem Energieausweis in die Immobilieninserate und Exposés aufzunehmen. Dieser Nachweis wurde von uns bereits bei den Eigentümern angefordert und kann von Ihnen beim Besichtigungstermin eingesehen werden.
Lage
Die zu vermietende Bürofläche liegt im Herzen von Stuttgart, angrenzend an den Bankenbereich und in unmittelbarer Nachbarschaft zur Liederhalle, dem Kongresszentrum, dem Robert Bosch Areal sowie dem Landesgewerbeamt und Ministerium für Wirtschaft. Die Stadtmitte und die Königstraße sind in ca. 4 min erreichbar. Alle Geschäfte des täglichen Bedarfs sind ebenfalls fußläufig in wenigen Minuten zu erreichen.
Flughafen 19 km | Fernbahnhof 1 km | Autobahn 13 km | U/S-Bahn 200 m | Zentrum 500 m | Bus 200 m | Einkaufsmöglichkeiten 300 m | Gaststätten 100 m
70174 Stuttgart, Mitte, Deutschland (auf Google Maps ansehen)

















