Büroflächen in Toplage – Stuttgart Mitte
70173 Stuttgart, Mitte, Bürohaus zur Miete
Kontaktdaten
-
NameHerr Raphael Jung
-
FirmaIMMORAUM GmbH
-
AnschriftUhlandstraße 14
70182 Stuttgart -
E-Mail
-
Telefon
-
Telefon
-
Mobil
Objektdaten
-
Objekt-IDIRx2169/G1/E3/Eh1
-
ObjekttypenBüro/Praxis, Bürohaus
-
Adresse70173 Stuttgart, Mitte
-
Bürofläche ca.405 m²
-
Büroteilfläche ca.405 m²
-
KücheTeeküche
-
HeizungsartFernwärme
-
Baujahr1960
-
AusstattungStandard
-
Mieterprovision (gewerblich)provisionsfrei
-
Miete pro m²11,00 EUR
-
Nebenkosten4,00 EUR
Ausstattung / Merkmale
- ✓ DV-Verkabelung
- ✓ Kabelfernsehen
- ✓ Linoleumboden
- ✓ Personenaufzug
- ✓ Teeküche
Objektbeschreibung
Beschreibung
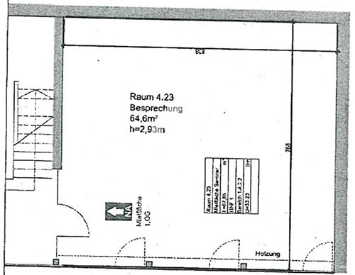
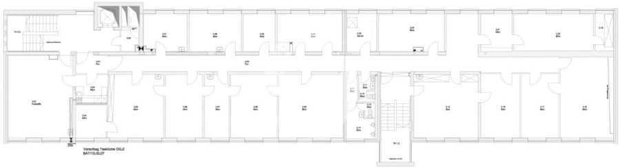
Das Bürogebäude in der Büchsenstraße überzeugt durch seine zentrale Lage und flexible Nutzungsmöglichkeiten. Im 2. OG stehen ca. 400 m² Bürofläche direkt zur Verfügung. Zusätzliche können ca. 400 m² auf Anfrage angemietet werden, um den Flächenbedarf Ihres Unternehmens flexibel zu gestalten. Die hellen und effizient aufgeteilten Räumlichkeiten bieten beste Voraussetzungen für modernes Arbeiten und können nach Mieterwunsch renoviert oder individuell ausgebaut werden. Im Erdgeschoss gibt es außerdem die Möglichkeit, einen Besprechungsraum anzumieten, der sich ideal für Meetings oder Präsentationen eignet.
Sonstiges
Noch nicht das Richtige? Wir führen weitere Objekte im Großraum Stuttgart. Sprechen Sie mit unseren Beratern. Gemeinsam finden wir Ihr Wunschobjekt! Wir freuen uns auf Ihre Kontaktaufnahme!
Nach den §§ 16, 16 a EnEV ist der Eigentümer, Verkäufer, Vermieter, Verpächter und Leasinggeber bei der Vermarktung von Immobilien verpflichtet, den Energieausweis der Immobilie gemäß der gesetzlichen Vorgabe bei Besichtigungen auszuhändigen bzw. auszuhängen und bestimmte energetische Kennwerte aus dem Energieausweis in die Immobilieninserate und Exposés aufzunehmen. Dieser Nachweis wurde von uns bereits bei den Eigentümern angefordert und kann von Ihnen beim Besichtigungstermin eingesehen werden.
Das Angebot ist für den Mieter provisionspflichtig. Im Falle der Anmietung hat Immoraum einen Anspruch gegenüber dem Mieter auf Zahlung einer Mieterprovision in Höhe von 2 Nettokaltmieten zzgl. gesetz. Mwst.
Lage
Die Immobilie liegt zentral in der Büchsenstraße im Herzen von Stuttgart-Mitte, einem der gefragtesten Stadtteile der Landeshauptstadt. Die Umgebung bietet eine ideale Mischung aus Bürogebäuden, Gastronomie und Einzelhandel. Die Anbindung an den öffentlichen Nahverkehr ist hervorragend: Der Hauptbahnhof sowie mehrere U-Bahn-Stationen sind in wenigen Minuten erreichbar. Auch mit dem Auto ist die Lage über die B27 und weitere zentrale Verkehrsachsen optimal angebunden. Parkmöglichkeiten stehen in umliegenden Parkhäusern zur Verfügung. Zahlreiche Restaurants, Cafés und Einkaufsmöglichkeiten in der Nachbarschaft runden die Attraktivität des Standorts ab.
Flughafen 14,40 km | Fernbahnhof 1,70 km | Autobahn 11 km | U/S-Bahn 240 m | Zentrum 1,20 km | Bus 260 m | Einkaufsmöglichkeiten 230 m | Gaststätten 230 m
70173 Stuttgart, Mitte, Deutschland (auf Google Maps ansehen)












