flexible, lichtdurchflutete Gewerbeeinheit In Stuttgart-Feuerbach
70469 Stuttgart, Feuerbach, Bürohaus zur Miete
Kontaktdaten
-
NameHerr Raphael Jung
-
FirmaIMMORAUM GmbH
-
AnschriftUhlandstraße 14
70182 Stuttgart -
E-Mail
-
Telefon
-
Telefon
-
Mobil
Objektdaten
-
Objekt-IDIR1465/G5
-
ObjekttypenBüro/Praxis, Bürohaus
-
Adresse70469 Stuttgart, Feuerbach
-
Etagen im Haus6
-
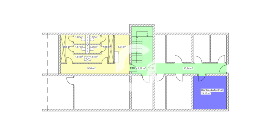
Bürofläche ca.283 m²
-
Büroteilfläche ca.283 m²
-
Wesentlicher EnergieträgerFernwärme
-
Zustandgepflegt
-
Mieterprovision (gewerblich)provisionsfrei
-
Miete pro m²11,50 EUR
-
Nebenkosten4,00 EUR
Ausstattung / Merkmale
- ✓ Personenaufzug
Energieausweis
-
EnergieausweistypVerbrauchsausweis
-
Baujahr-
-
Wesentlicher EnergieträgerFernwärme
Objektbeschreibung
Beschreibung
Die zur Verfügung stehende Einheit im EG/UG befindet sich im Gebäude D28 im MKI-Areal und überzeugt mit einer Fläche von rd. 283 m² durch einen großzügigen und lichtdurchfluteten Grundriss. Flexible Möglichkeiten der Raumaufteilung sind somit darstellbar. Die großflächige Verglasung sorgt für ein helles, einladendes Raumklima, welches bei Bedarf über den vorhandenen Sonnenschutz individuell reguliert werden kann. Der Zustand der 2016 modernisierten Immobilie ist insgesamt als sehr gepflegt einzustufen. Die Ausstattung kann als gehoben bezeichnet werden. Zudem steht der Einheit eine Teeküche zur Verfügung. Das EG ist ebenerdig und barrierefrei erreichbar, das UG über das vorhandene Treppenhaus. Insgesamt sind noch ca. 6 PKW-Stellplätze verfügbar, die zusätzlich angemietet werden können.
Sonstiges
Noch nicht das Richtige? Wir führen weitere Objekte im Großraum Stuttgart. Sprechen Sie mit unseren Beratern. Gemeinsam finden wir Ihr Wunschobjekt! Wir freuen uns auf Ihre Kontaktaufnahme!
Am 01. Mai 2014 ist die EnEV 2014 in Kraft getreten. Nach den §§ 16, 16 a EnEV ist der Eigentümer, Verkäufer, Vermieter, Verpächter und Leasinggeber bei der Vermarktung von Immobilien verpflichtet, den Energieausweis der Immobilie gemäß der gesetzlichen Vorgabe bei Besichtigungen auszuhändigen bzw. auszuhängen und bestimmte energetische Kennwerte aus dem Energieausweis in die Immobilieninserate und Exposés aufzunehmen. Dieser Nachweis wurde von uns bereits bei den Eigentümern angefordert und kann von Ihnen beim Besichtigungstermin eingesehen werden.
Lage
Das Bürogebäude D28 befindet sich in vorteilhafter Lage im MKI-Areal im Stadtbezirk Feuerbach. Die umliegenden Bundesstraßen B10, B27 sowie die B295 schaffen aus verkehrstechnischer Sicht optimale Bedingungen. Die bereits sehr günstige Anbindung wird durch ein vielfältiges Angebot im öffentlichen Nahverkehr bestens ergänzt. S-Bahn-, U-Bahn- sowie Busverbindungen sind in nur wenigen Minuten erreichbar. Das Stuttgarter Zentrum ist sowohl mit dem Auto als auch per ÖPNV in rd. 15–20 Minuten zu erreichen.
Flughafen 18 km | Fernbahnhof 800 m | Autobahn 14,20 km | U/S-Bahn 500 m | Zentrum 6,40 km | Bus 500 m | Gaststätten 300 m
Die dargestellte Position der Immobilie ist nur eine ungefähre Angabe.












