Modernes Bürogebäude | Stuttgart Nordtor Plaza | Top ÖPNV & Stellplätze
70469 Stuttgart, Feuerbach, Bürohaus zur Miete
Kontaktdaten
-
NameHerr Sven Gruber
-
FirmaIMMORAUM GmbH
-
AnschriftUhlandstraße 14
70182 Stuttgart -
E-Mail
-
Telefon
-
Telefon
-
Mobil
Objektdaten
-
Objekt-IDIRx2722/G1/E6/Eh2
-
ObjekttypenBüro/Praxis, Bürohaus
-
Adresse70469 Stuttgart, Feuerbach
-
Etagen im Haus11
-
Bürofläche ca.480 m²
-
Büroteilfläche ca.480 m²
-
KücheTeeküche
-
Zustandgepflegt
-
Mieterprovision (gewerblich)provisionspflichtig gemäß AGB
-
Miete pro m²16,50 EUR
-
Nebenkosten4,20 EUR
Ausstattung / Merkmale
- ✓ Klimatisiert
- ✓ Personenaufzug
- ✓ Teeküche
- ✓ Teppichboden
Objektbeschreibung
Beschreibung
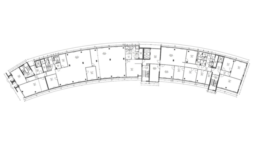
Die angebotenen Büroflächen befinden sich im markanten Bürokomplex "Stuttgart Nordtor Plaza" im Norden der Landeshauptstadt Stuttgart. Das moderne Büro- und Verwaltungsgebäude verfügt über insgesamt elf Etagen und bietet flexible Mietflächen, die individuell nach den Anforderungen der zukünftigen Nutzer gestaltet und aufgeteilt werden können. Großzügige Fensterfronten sorgen für helle und freundliche Arbeitsbereiche und schaffen eine angenehme Arbeitsatmosphäre.
Die Flächen eignen sich sowohl für klassische Bürostrukturen als auch für moderne Open-Space-Konzepte und ermöglichen damit vielfältige Nutzungsmöglichkeiten für Unternehmen unterschiedlicher Branchen. Ergänzt wird das Angebot durch eine zeitgemäße Gebäudetechnik sowie durch Stellplätze in der Tiefgarage und im Außenbereich. Insgesamt bietet das Objekt moderne Büroflächen in einem gut angebundenen Gewerbestandort mit funktionaler Infrastruktur.
Ausstattung
- Modernes 11-geschossiges Bürogebäude
-
Flexible Raumaufteilung und Open-Space-Konzepte möglich – Großzügige Fensterfronten für helle Büroräume – Elektrisch steuerbarer außenliegender Sonnenschutz – Betonkernaktivierung zur Kühlung – Moderne Lüftungsanlage
- Hohlraumböden für technische Installationen und IT-Verkabelung
-
Barrierefreier Zugang und behindertenfreundliche Ausstattung
- 2 Personenaufzüge pro Treppenhaus
-
Moderne Teeküchen oder Lounges nach Mieterwunsch möglich – PKW-Stellplätze in Tiefgarage und Außenbereich – Fahrradstellplätze vorhanden – Archiv- und Lagerflächen nach Bedarf verfügbar
Sonstiges
Noch nicht das Richtige? Wir führen weitere Objekte im Großraum Stuttgart. Sprechen Sie mit unseren Beratern. Gemeinsam finden wir Ihr Wunschobjekt! Wir freuen uns auf Ihre Kontaktaufnahme!
Nach den §§ 16, 16 a EnEV ist der Eigentümer, Verkäufer, Vermieter, Verpächter und Leasinggeber bei der Vermarktung von Immobilien verpflichtet, den Energieausweis der Immobilie gemäß der gesetzlichen Vorgabe bei Besichtigungen auszuhändigen bzw. auszuhängen und bestimmte energetische Kennwerte aus dem Energieausweis in die Immobilieninserate und Exposés aufzunehmen. Dieser Nachweis wurde von uns bereits bei den Eigentümern angefordert und kann von Ihnen beim Besichtigungstermin eingesehen werden.
Das Angebot ist für den Mieter provisionspflichtig. Im Falle der Anmietung hat Immoraum einen Anspruch gegenüber dem Mieter auf Zahlung einer Mieterprovision zzgl. gesetz. Mwst., gemäß unseren AGB.
Lage
Das Nordttor Plaza befindet sich in einem etablierten Unternehmensstandort im nördlichen Teil der Landeshauptstadt Stuttgart. Die Region Stuttgart zählt zu den wirtschaftsstärksten Metropolräumen Deutschlands und ist geprägt von international tätigen Konzernen, innovativen Technologieunternehmen sowie einem starken Mittelstand.
Der Standort überzeugt insbesondere durch seine sehr gute verkehrliche Anbindung. Über die Heilbronner Straße, eine der wichtigsten Einfallstraßen der Stadt, besteht eine schnelle Verbindung in die Innenstadt sowie zur Autobahn A81. Gleichzeitig gewährleisten Stadtbahn- und S-Bahn-Anbindungen in unmittelbarer Nähe eine komfortable Erreichbarkeit des Hauptbahnhofs und weiterer zentraler Standorte.
Das direkte Umfeld ist durch eine Mischung aus Büro-, Gewerbe- und Dienstleistungsnutzungen geprägt. Gastronomische Angebote, Einkaufsmöglichkeiten und Einrichtungen des täglichen Bedarfs befinden sich in kurzer Entfernung und schaffen eine funktionale Infrastruktur für den Arbeitsalltag. Insgesamt bietet das Nordtor Plaza eine attraktive Kombination aus guter Erreichbarkeit, wirtschaftsstarkem Umfeld und etabliertem Bürostandort.
Flughafen 18 km | Fernbahnhof 4 km | Autobahn 5 km | U/S-Bahn 50 m | Zentrum 4,50 km | Bus 100 m | Einkaufsmöglichkeiten 600 m | Gaststätten 300 m
Die dargestellte Position der Immobilie ist nur eine ungefähre Angabe.



