Funktionale Bürofläche in Leonberg – zeitnah verfügbar
71229 Leonberg, Bürohaus zur Miete
Kontaktdaten
-
NameHerr Raphael Jung
-
FirmaIMMORAUM GmbH
-
AnschriftUhlandstraße 14
70182 Stuttgart -
E-Mail
-
Telefon
-
Telefon
-
Mobil
Objektdaten
-
Objekt-IDIR8573/G1/E1/Eh1
-
ObjekttypenBüro/Praxis, Bürohaus
-
Adresse71229 Leonberg
-
Etage1
-
Etagen im Haus4
-
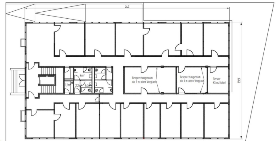
Bürofläche ca.636 m²
-
Büroteilfläche ca.318 m²
-
KücheTeeküche
-
HeizungsartZentralheizung
-
Wesentlicher EnergieträgerGas
-
Baujahr1990
-
Zustandnach Vereinbarung
-
AusstattungStandard
-
Stellplätze gesamt3
-
Mieterprovision (gewerblich)provisionsfrei
-
Miete pro m²8,00 EUR
-
Nebenkosten1,50 EUR
Ausstattung / Merkmale
- ✓ DV-Verkabelung
- ✓ Personenaufzug
- ✓ Räume veränderbar
- ✓ Teeküche
- ✓ Teppichboden
- ✓ Tiefgarage
Energieausweis
-
EnergieausweistypVerbrauchsausweis
-
Baujahr1990
-
Wesentlicher EnergieträgerGas
Objektbeschreibung
Beschreibung
Das Bürogebäude befindet sich im Gewerbegebiet Hertich in Leonberg. Das Gebäude befindet sich allgemein in einem gepflegten Zustand und verfügt über alle üblichen Ausstattungsmerkmale. Eine Teeküche, getrennte Sanitärräume sowie ein außenliegender Sonnenschutz, der für ein angenehmes Arbeitsklima auch bei zu starker Sonneneinstrahlung sorgt, sind vorhanden. Alle Einheiten sind bequem über einen Personenaufzug erreichbar. Ausreichend Stellplätze sind ebenfalls verfügbar und können nach Bedarf angemietet werden.
Die Fläche kann im aktuellen Zustand übernommen werden oder in Abstimmung renoviert übergeben werden. Im Falle einer Renovierung erhöht sich der Mietpreis.
Sonstiges
Noch nicht das Richtige? Wir führen weitere Objekte im Großraum Stuttgart. Sprechen Sie mit unseren Beratern. Gemeinsam finden wir Ihr Wunschobjekt! Wir freuen uns auf Ihre Kontaktaufnahme!
Nach den §§ 16, 16 a EnEV ist der Eigentümer, Verkäufer, Vermieter, Verpächter und Leasinggeber bei der Vermarktung von Immobilien verpflichtet, den Energieausweis der Immobilie gemäß der gesetzlichen Vorgabe bei Besichtigungen auszuhändigen bzw. auszuhängen und bestimmte energetische Kennwerte aus dem Energieausweis in die Immobilieninserate und Exposés aufzunehmen. Dieser Nachweis wurde von uns bereits bei den Eigentümern angefordert und kann von Ihnen beim Besichtigungstermin eingesehen werden.
Lage
Das gewachsene Gewerbegebiet Hertich liegt im Süden Leonbergs direkt an der Autobahn. Die Leonberger Autobahnanschlüsse an die A8 und die A81 sind in nur wenigen Minuten erreichbar. Das Gebiet umfasst Industrie-, Handwerk, Automotive Vertriebsniederlassungen, Software- und Informationstechnologie, Engineering, Kreativwirtschaft sowie Großhandel. In nur vier Gehminuten erreicht man die Bushaltestelle Eltingen Hertichstraße. Anhand der S-Bahnhaltestelle Leonberg erhält man direkten Anschluss an den Stuttgarter Hauptbahnhof.
Flughafen 20 km | Fernbahnhof 18 km | Autobahn 1,30 km | U/S-Bahn 2,70 km | Zentrum 22 km | Bus 300 m | Einkaufsmöglichkeiten 2,70 km | Gaststätten 400 m
71229 Leonberg, Deutschland (auf Google Maps ansehen)














