Exklusive Bürofläche in Fellbach
70736 Fellbach, Bürohaus zur Miete
Kontaktdaten
-
NameHerr Maximilian Unterreiner
-
FirmaIMMORAUM GmbH
-
AnschriftUhlandstraße 14
70182 Stuttgart -
Telefon
-
Telefon
Objektdaten
-
Objekt-IDIRx2504
-
ObjekttypenBüro/Praxis, Bürohaus
-
Adresse70736 Fellbach
-
EtageEG
-
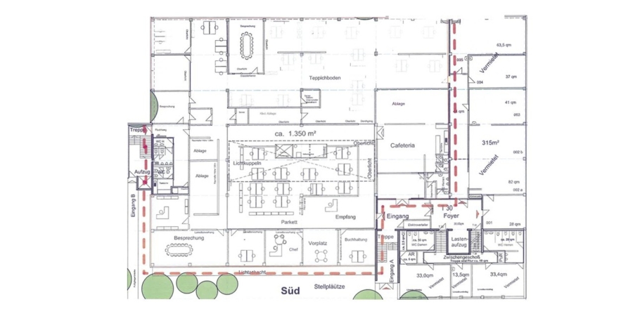
Bürofläche ca.1.350 m²
-
Büroteilfläche ca.250 m²
-
KücheTeeküche
-
HeizungsartZentralheizung
-
Baujahr1973
-
Letzte Modernisierung2018
-
Zustandmodernisiert
-
AusstattungStandard
-
Mieterprovision (gewerblich)provisionsfrei
-
Miete pro m²9,00 EUR
-
Nebenkosten2,00 EUR
Ausstattung / Merkmale
- ✓ DV-Verkabelung
- ✓ Parkettboden
- ✓ Räume veränderbar
- ✓ Teeküche
- ✓ Teppichboden
Objektbeschreibung
Beschreibung
Bei diesem Objekt handelt es sich um ein modernes Bürogebäude, das durch seine flexible und hochwertige Ausstattung überzeugt. Die Fläche ist in bis zu drei Einheiten teilbar und bietet dank einer großzügigen Raumhöhe von ca. 4,00 m sowie einer Bodentraglast von 1,5 t optimale Voraussetzungen für unterschiedliche Nutzungskonzepte.
Die Grundrissgestaltung erlaubt sowohl die Einrichtung großzügiger Open-Space-Bereiche als auch die Realisierung von Einzelbüros und Besprechungsräumen. Hochwertige Bodenbeläge aus Parkett und Nadelfilz, Akustiktrennwände mit teilweise verglasten Elementen sowie ein heller Lichthof schaffen eine angenehme und repräsentative Arbeitsatmosphäre.
Der Zugang erfolgt barrierefrei über die Tiefgarage. Zudem stehen eine offene Küchenzeile, getrennte WC-Anlagen für Damen und Herren sowie ein behindertengerechtes WC im Gebäude zur Verfügung. Bei einer Teilung der Fläche werden zusätzliche Sanitäreinheiten ergänzt.
Die Versorgung erfolgt über eine Zentralheizung, und für zukunftsorientierte Mobilität besteht die Möglichkeit, Wallboxen für E-Fahrzeuge nachzurüsten.
Damit bietet das Gebäude ideale Voraussetzungen für moderne Arbeitswelten und passt sich flexibel den individuellen Anforderungen seiner Nutzer an.
Sonstiges
Noch nicht das Richtige? Wir führen weitere Objekte im Großraum Stuttgart. Sprechen Sie mit unseren Beratern. Gemeinsam finden wir Ihr Wunschobjekt! Wir freuen uns auf Ihre Kontaktaufnahme!
Nach den §§ 16, 16 a EnEV ist der Eigentümer, Verkäufer, Vermieter, Verpächter und Leasinggeber bei der Vermarktung von Immobilien verpflichtet, den Energieausweis der Immobilie gemäß der gesetzlichen Vorgabe bei Besichtigungen auszuhändigen bzw. auszuhängen und bestimmte energetische Kennwerte aus dem Energieausweis in die Immobilieninserate und Exposés aufzunehmen. Dieser Nachweis wurde von uns bereits bei den Eigentümern angefordert und kann von Ihnen beim Besichtigungstermin eingesehen werden.
Lage
Die Gewerbefläche ist attraktiv eingebettet am Übergang zwischen urbanem Zentrum und regionalem Verkehrsnetz. Sie profitiert von direkter Anbindung an das öffentliche Nahverkehrssystem sowie an Hauptverkehrsachsen und Autobahnen — damit sind Stadtzentrum und umliegende Regionen schnell erreichbar. Umgeben von einem Mix aus Büros, Dienstleistern und kompaktem Einzelhandel entsteht ein professionelles, repräsentatives Umfeld mit kurzen Wegen zu gastronomischen Angeboten, Einkaufsmöglichkeiten und öffentlichen Einrichtungen. Diese Lage vereint städtische Dynamik, gute Erreichbarkeit und angenehme Arbeitsatmosphäre.
Flughafen 21 km | Fernbahnhof 300 m | Autobahn 5 km | U/S-Bahn 300 m | Zentrum 1 km | Bus 200 m | Einkaufsmöglichkeiten 200 m | Gaststätten 200 m
70736 Fellbach, Deutschland (auf Google Maps ansehen)











