Mehrfamilienhaus mit Leerstand in guter Lage von Stuttgart-Untertürkheim zum Erwerb
70327 Stuttgart, Mehrfamilienhaus zum Kauf
Kontaktdaten
-
NameHerr Daban Othman
-
FirmaIMMORAUM GmbH
-
AnschriftUhlandstraße 14
70182 Stuttgart -
E-Mail
-
Telefon
-
Telefon
-
Mobil
-
Fax+49 711 252899-90
Objektdaten
-
Objekt-IDIRx2453/G1
-
ObjekttypenHaus, Mehrfamilienhaus
-
Adresse70327 Stuttgart
-
Wohneinheiten3
-
Wohnfläche ca.206,87 m²
-
Grundstück ca.400 m²
-
Zimmer8
-
Wesentlicher EnergieträgerGas
-
Baujahr1932
-
Zustandgepflegt
-
Garagenstellplatz1 Stellplatz
-
KäuferprovisionProvisionspflichtig
Die Provision beträgt 3,57 % inkl. gesetzl. MwSt. -
Kaufpreis700.000 EUR
Ausstattung / Merkmale
- ✓ Garage
Energieausweis
-
EnergieausweistypBedarfsausweis
-
Gültig bis12.09.2035
-
Baujahr1932
-
Wesentlicher EnergieträgerGas
-
Endenergiebedarf321,20 kWh/(m²·a)
-
EnergieeffizienzklasseH
Objektbeschreibung
Beschreibung
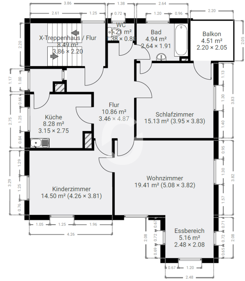
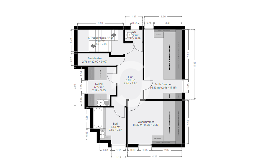
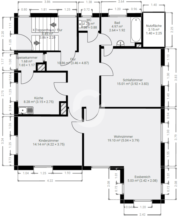
Das Mehrfamilienhaus aus dem Jahr 1932 befindet sich auf einem ca. 400 m² großen Grundstück. Insgesamt verfügt die Liegenschaft über eine Wohnfläche von ca. 206,87 m², die sich auf drei Wohneinheiten verteilt. Des Weiteren verfügt das Objekt über eine Garage.
Derzeit stehen zwei von drei Wohneinheiten leer. Die Wohnung im 1. Obergeschoss ist kurzfristig vermietbar. In der Dachgeschosswohnung sind vor einer Neuvermietung noch Schönheitsreparaturen erforderlich. Das Dach wurde im Jahr 2005 neu eingedeckt. Insgesamt befindet sich das Objekt in einem ordentlichen Zustand und bietet weiteres Aufwertungspotenzial.
Sonstiges
Weitere Informationen sowie das Exposé stellen wir Ihnen gerne auf Anfrage zur Verfügung.
Ein Energieausweis liegt vor. Gerne können Sie mit uns einen Besichtigungstermin vor Ort vereinbaren.
Die Immoraum GmbH ist mit dem Verkauf des Mehrfamilienhauses exklusiv mandatiert. Der Verkauf durch die Immoraum GmbH erfolgt für den Käufer provisionspflichtig.
Lage
Die Augsburger Straße 457 liegt im Stuttgarter Stadtbezirk Untertürkheim, einem etablierten Wohn- und Gewerbestandort im Osten der Landeshauptstadt. Stuttgart zählt zu den wirtschaftsstärksten Regionen Deutschlands und zeichnet sich durch einen vielfältigen Branchenmix sowie eine hohe Beschäftigungsdichte aus.
Der Stadtteil Untertürkheim verbindet industrielle Prägung mit gewachsenen Wohnstrukturen und Weinbergen und bietet eine gute Infrastruktur mit Einkaufsmöglichkeiten, Dienstleistungen sowie Bildungs- und Versorgungseinrichtungen im Umfeld. Die Verkehrsanbindung ist sehr gut: Über die B10 besteht eine schnelle Verbindung in die Stuttgarter Innenstadt und das Umland. Zudem ist der Standort durch S-Bahn-, U-Bahn- und Buslinien hervorragend an den öffentlichen Nahverkehr angebunden.
70327 Stuttgart, Deutschland (auf Google Maps ansehen)



















