Für Kurzentschlossene: Flexible Bürofläche ab sofort verfügbar
71034 Böblingen, Büro/Praxis zur Miete
Kontaktdaten
-
NameHerr Marvin Rometsch
-
FirmaIMMORAUM GmbH
-
AnschriftUhlandstraße 14
70182 Stuttgart -
E-Mail
-
Telefon
-
Telefon
-
Mobil
Objektdaten
-
Objekt-IDIRx2428
-
ObjekttypBüro/Praxis
-
Adresse71034 Böblingen
-
Bürofläche ca.1.391,50 m²
-
Lagerfläche ca.112 m²
-
Büroteilfläche ca.100 m²
-
KücheEinbauküche
-
HeizungsartFernwärme
-
Baujahr1988
-
Zustandgepflegt
-
Mieterprovision (gewerblich)provisionsfrei
-
Miete pro m²8,89 EUR
-
Nebenkosten3,30 EUR
Ausstattung / Merkmale
- ✓ DV-Verkabelung
- ✓ Einbauküche
- ✓ Klimatisiert
- ✓ Personenaufzug
- ✓ Teeküche
- ✓ Teppichboden
Energieausweis
-
EnergieausweistypVerbrauchsausweis
-
Baujahr lt. Energieausweis1988
-
Wesentlicher EnergieträgerFernwärme
-
Endenergieverbrauch144,00 kWh/(m²·a)
-
Endenergieverbrauch Strom74,00 kWh/(m²·a)
-
Endenergieverbrauch Wärme107,00 kWh/(m²·a)
-
EnergieeffizienzklasseE
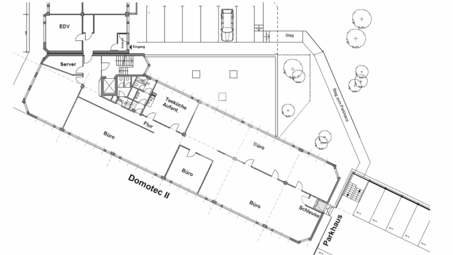
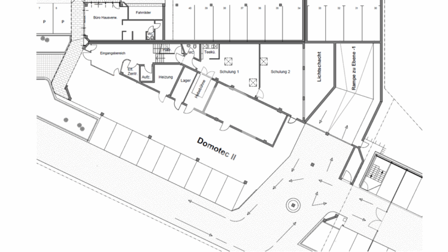
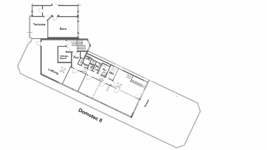
Objektbeschreibung
Beschreibung
Das Gebäude befindet sich nahe dem Böblinger Bahnhof und erstreckt sich über insgesamt fünf Etagen. Die Zugänglichkeit zu den verschiedenen Etagen ist sowohl über die Treppenhäuser als auch barrierefrei mit Aufzügen gewährleistet, um die Mobilität aller Nutzer zu fördern.
Die Lage des Gebäudes bietet deutliche Vorteile, da es von der Nähe zu umliegenden Unternehmen sowie von der guten verkehrstechnischen Anbindung profitiert.
Das Objekt selbst ist vollklimatisiert und mit hochwertigem Teppichboden ausgestattet, was ein angenehmes Arbeitsklima schafft.
Derzeit stehen noch Flächen im EG, 1. OG und im 5. OG zur Vermietung. Darüber hinaus können Stellplätze je nach Bedarf den Mietflächen zugeordnet werden, um die Parkmöglichkeiten für Mieter und deren Mitarbeiter zu gewährleisten.
Ausstattung
- Abstellraum
- Keller
- Serverraum
- Aktuell Großraumbüro, kann aber umgestaltet werden
Sonstiges
Noch nicht das Richtige? Wir führen weitere Objekte im Großraum Stuttgart. Sprechen Sie mit unseren Beratern. Gemeinsam finden wir Ihr Wunschobjekt! Wir freuen uns auf Ihre Kontaktaufnahme!
Nach den §§ 16, 16 a EnEV ist der Eigentümer, Verkäufer, Vermieter, Verpächter und Leasinggeber bei der Vermarktung von Immobilien verpflichtet, den Energieausweis der Immobilie gemäß der gesetzlichen Vorgabe bei Besichtigungen auszuhändigen bzw. auszuhängen und bestimmte energetische Kennwerte aus dem Energieausweis in die Immobilieninserate und Exposés aufzunehmen. Dieser Nachweis wurde von uns bereits bei den Eigentümern angefordert und kann von Ihnen beim Besichtigungstermin eingesehen werden.
Lage
Die Daimlerstraße 1a in Böblingen liegt im wirtschaftlich starken Böblinger Gewerbekorridor innerhalb der Metropolregion Stuttgart. Mit schneller Anbindung an die A81 und nahegelegener S-Bahn-Anbindung profitiert der Standort von exzellenter Erreichbarkeit für Pendler, Kunden und Zulieferer. Die Stadt zieht international ausgerichtete Technologie-, Industrie- und Dienstleistungsunternehmen an.
Flughafen 22,20 km | Fernbahnhof 700 m | Autobahn 2,20 km | U/S-Bahn 800 m | Bus 130 m | Einkaufsmöglichkeiten 400 m | Gaststätten 300 m
71034 Böblingen, Deutschland (auf Google Maps ansehen)















